Håndværkervej 2
9560 Hadsund

Sagsnr. 5540R

Ejendomstype

Etageareal

Grund

6.098 m²

23.092 m²

Fleksibel og velholdt industri- og lagerejendom beliggende i erhvervskvarter i Hadsund

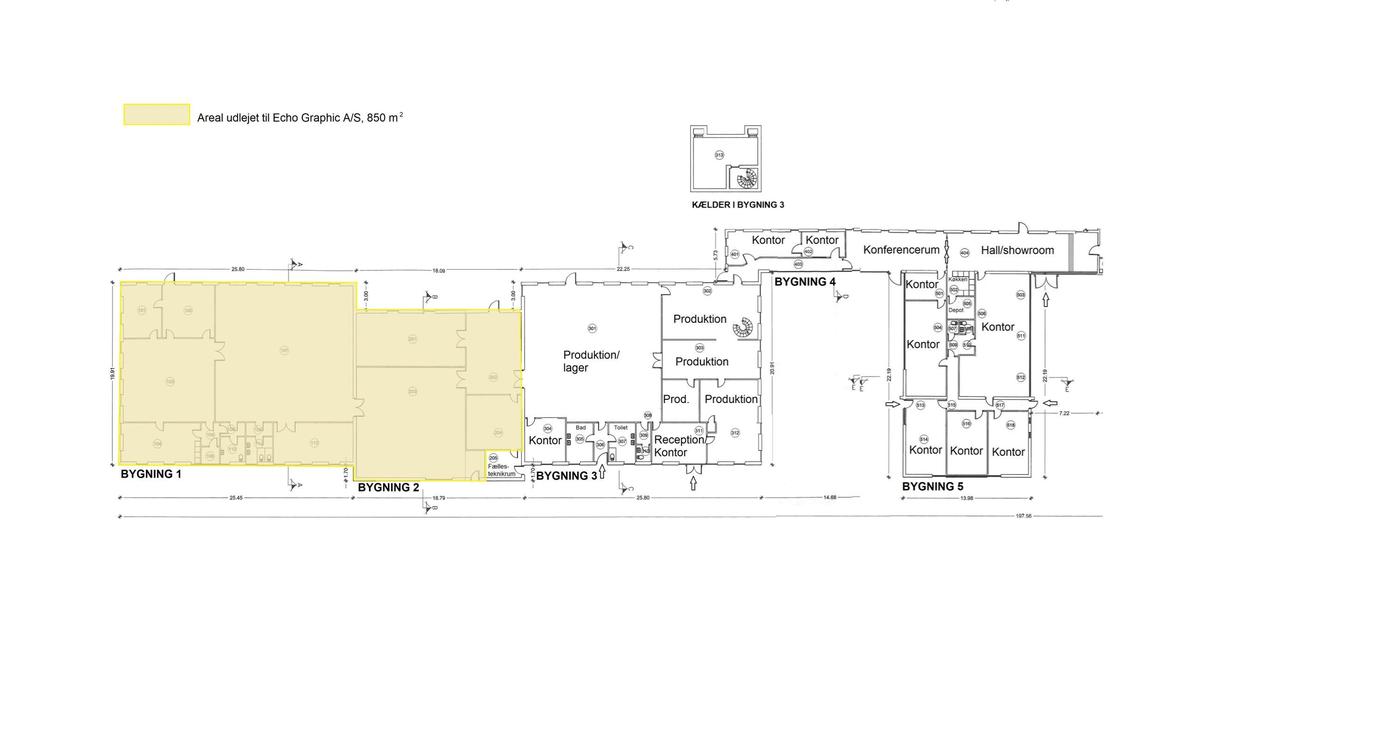
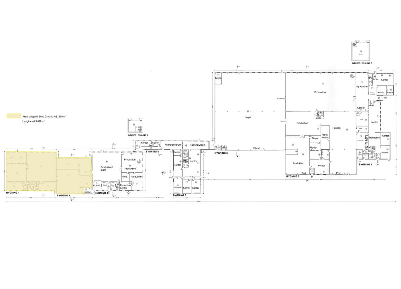
Ejendommen består dels af produktions- og lagerhaller på ca. 3.400 m² og med kontor- og velfærdsbygning på ca. 700 m² samt fritliggende kontorafsnit på ca. 500 m² med forbindelsesgang til hallerne, og dels tre sammenbyggede produktions- og lagerbygninger, hvoraf to er udlejet (ca. 850 m2), og en tredje har været udlejet ca. 600 m²). Der henvises til indretningsplanerne på side 35, 36 og 37.

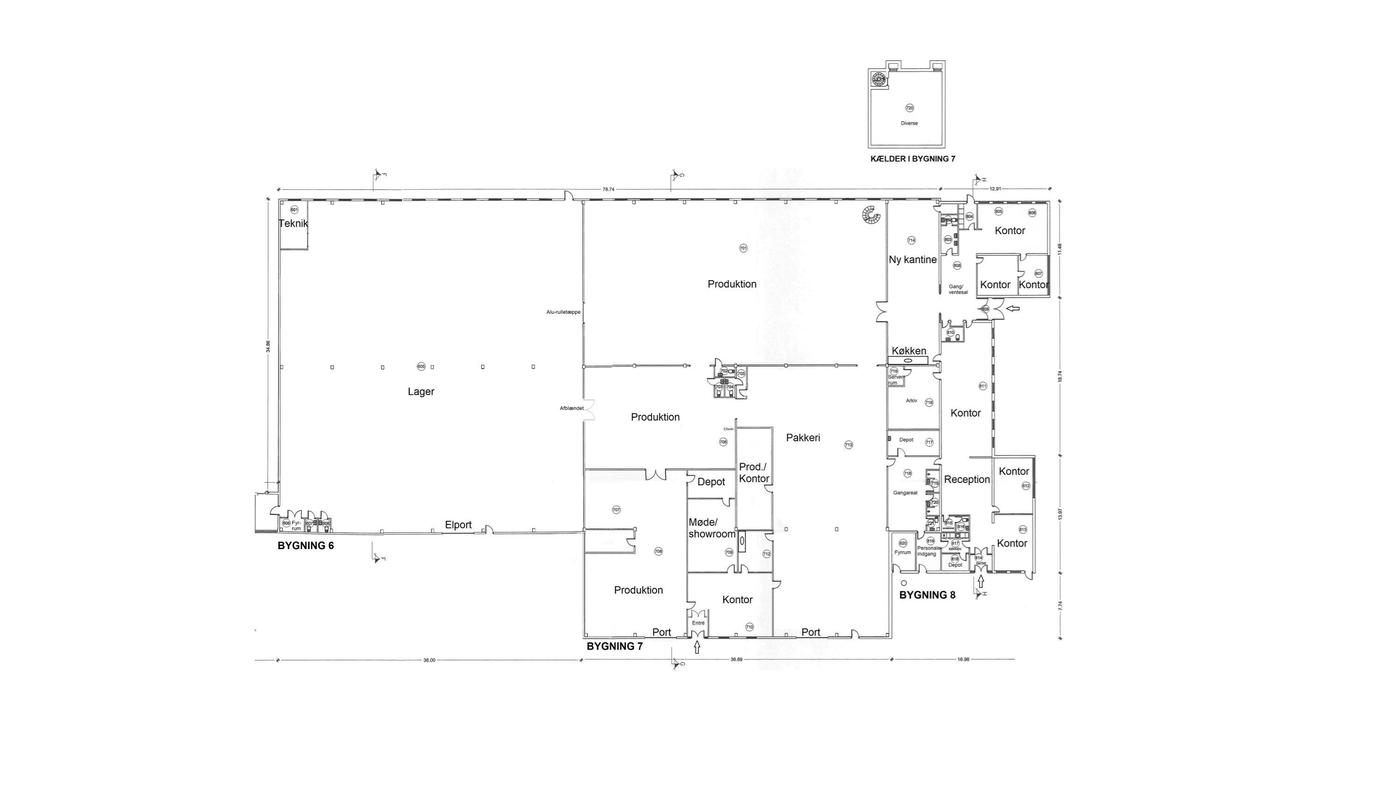
Produktions- og lagerhallerne (bygning 6 og 7) er opført i søjle-drager konstruktion i beton og med TNT-spær med svag taghældning. Taget er belagt med tagpap, og der er mange ovenlysvinduer. Frihøjden i kip er ca. 4,7 meter, og ved facade ca. 4,1 meter. Der er tre elektriske aluhejseporte med højde på 3,4-3,7 meter og bredde på 3,7 meter. Gulve er lagt i beton. Der er 300 Amp. Opvarmning sker med caloifereblæsere. Den største hal på ca. 2.000 m² er p.t. indrettet i fire afsnit, samt mindre kontorsektion og toiletkerne. Den mindste er uden indretning.

Kontor- og velfærdsbygningen (bygning 8) er indrettet med reception/storkontor, 5 kontorum i varierende størrelse, helt ny kantine, personaleindgang til omklædning/bad/toiletter, samt diverse rum.

Fra den mindste hal er der forbindelsesgang (bygning 4) til den fritliggende kontorbygning (bygning 5) med 6 kontorer/møderum i varierende størrelse, showroom og konferencerum samt køkken og toiletter. Anvendes p.t. til udviklings-/teknisk afdeling. Bygningen har eget nyere indgangsparti. Denne bygning vil være velegnet til udlejning, såfremt køber ikke umiddelbart kan anvende den.

Endvidere er der tre sammenhængende produktions- og lagerbygninger med flade tage belagt med tagpap og ovenlysvinduer. Plane lofter med frihøjde på ca. 2,5-3,0 meter. Den ene bygning (bygning 3) er tom, og har adgang til forbindelsesgangen og dermed til hallerne og de øvrige ledige arealer. Bygningen indeholder afsnit godkendt til levnedsmiddelproduktion, og har været udlejet som selvstændigt lejemål. De to øvrige bygninger (bygning 1 og 2) er udlejet som et lejemål, der overtages af køber.

Der er overalt betongulve, og i kontorer m.v. er der tæpper eller klinker. Vinduer i plast monteret med termoruder (2004).

Opvarmning sker med fjernvarme og caloifereblæsere og radiatorer. Der er to centralvarmeanlæg, en i bygning 8 og en i bygning 2.

Der er hovedsikringer med hhv. 300 Amp og 100 Amp.

Udenomsarealerne mod Håndværkervej er asfalterede og indhegnede og med tre dobbelte gitterporte, og på bagsiden af bygninger er der græsarealer.

Bagerst på grunden er der er regulært jordstykke med bevoksning, hvor der potentielt kan opføres ca. 1.600 m² bygning.

Ejendommen kan overtages ved fysisk handel, men også overdrages i selskabshandel ved køb af samtlige aktier i Echo Ejendom A/S. I årsrapport pr. 30. april 2021 er ejendommen optaget til en værdi på 12,2 mio.kr., hvilket stort set udgør samlede aktiver, og selskabet har en egenkapital på kr. 1,5 mio.kr. Udskudt skat
gør 1,3 mio.kr. Der er realkreditlån med aktuel restgæld på ca. 7,7 mio.kr. Årlige afdrag udgør ca. 0,2 mio.kr.

Læs mere

Denne ejendom er solgt

Vil du vide mere?

Jesper Bruun Fangel

jef@nordicals.dk

+45 8915 3300

Østervold 42, 2. sal, 8900 Randers C

+4570203911

8900@nordicals.dk

Besøg vores mæglerside

Lignende ejendomme

Til top