Textilvænget 3
9560 Hadsund

Sagsnr. 5786R

Ejendomstype

Etageareal

Grund

Energiklasse

840 m²

2.520 m²

B

Kontantpris

Købspris pr. m²

Årlig driftsudgift

Årlig driftsudgift pr. m²

4.200.000 kr.

5.000 kr.

45.607 kr.

54 kr.

Forretnings- /domicilejendom

Ejendommen er beliggende i et erhvervsområde i Hadsunds nordlige del på stikvej til Ringvejen.

Ejendommen har hidtil været benyttet af Brdr. Dahl til engrosforretning, og vil være velegnet til en række andre formål.

Konstruktion: ejendommen er opført i 2008 med ydervægge i koksgrå betonelementer.

Tag: built up (fladt tag) belagt med tagpap og ovenlyskupler.

Porte: To stk. aluhejseporte ca. 3,5 x 3 meter og ca. 2 x 2 meter i ejendommens gavl mod varegården.

Gulve: Betonguld / epoxymalet.

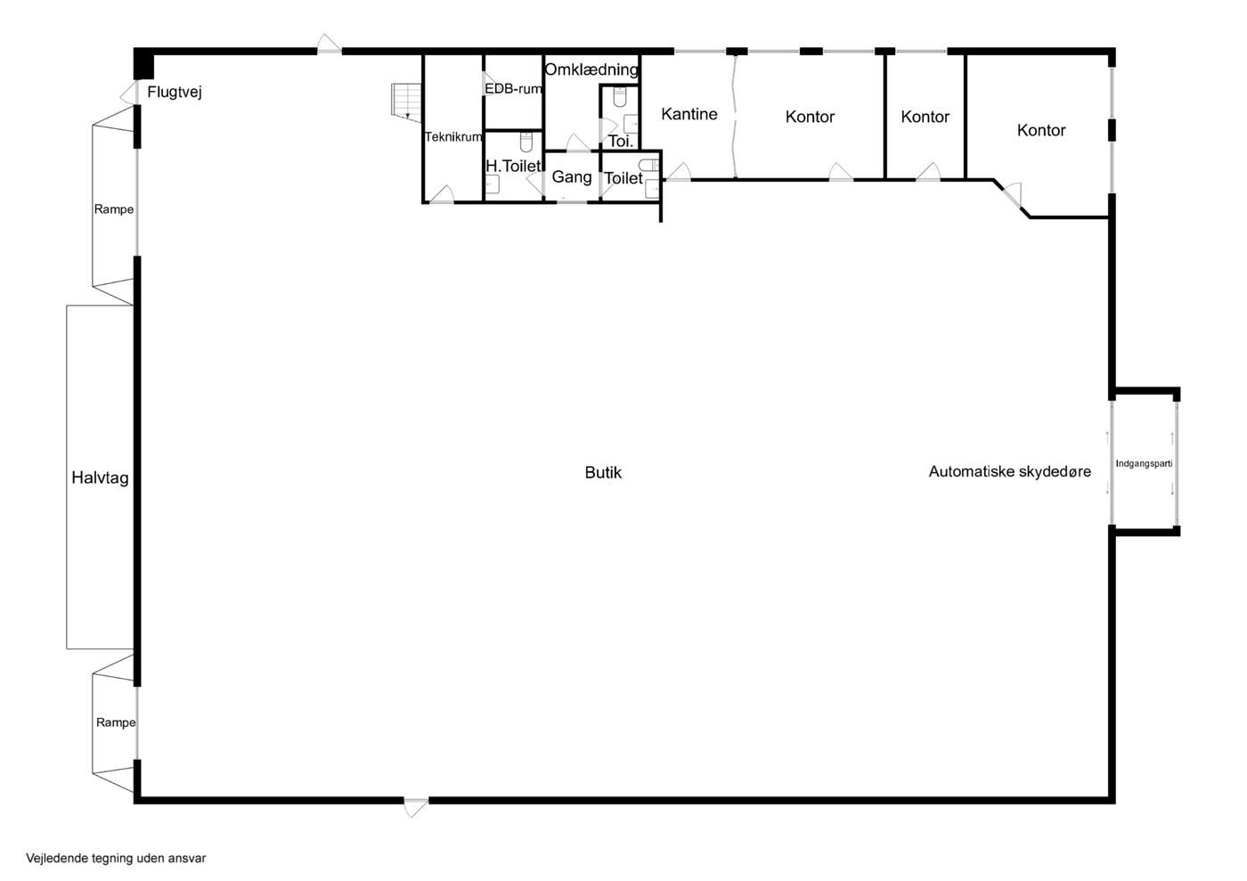
Indretning: vindfang med adgang til regulært forretningslokale på 650 m2, hvorfra der er adgang til tre kontorer, kantine, et omklædningsrum, it- og teknikrum samt tre toiletter.

Opvarmning: fjernvarme.

Udenomsarealer - befæstning - indhegning etc.: udenomsarealet er befæstet med betonsten. Den bagerste del af grunden er indhegnet.

Læs mere

Vil du vide mere?

Morten Lundhøj

mol@nordicals.dk

+45 8915 3301

Østervold 42, 2. sal, 8900 Randers C

+4570203911

8900@nordicals.dk

Besøg vores mæglerside

Lignende ejendomme

Til top