Vestergade 34A
9620 Aalestrup

Sagsnr. 2441V

Ejendomstype

Etageareal

Grund

Energiklasse

1.334 m²

1.098 m²

E

Kontantpris

Købspris pr. m²

Årlig driftsudgift

Årlig driftsudgift pr. m²

995.000 kr.

746 kr.

108.080 kr.

81 kr.

Erhvervsejendom med et boliglejemål og et erhvervslejemål, velbeliggende i centrum af Aalestrup.

Erhvervsdelen er tom og til købers disposition, mens boligen er udlejet.
Facader: Mursten

Tag: Eternitplader, taget er fra 1999.

Vinduer: Vinduerne i ejendommen er af varierende alder. Veluxvinduerne i boligen er fra 2017.

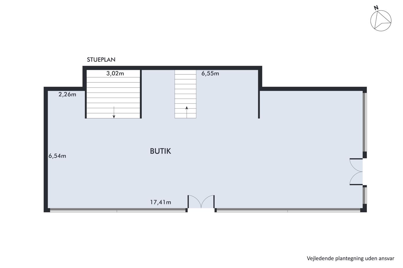
Indretning: Erhvervslejemålet er indrettet med 2 store regulære salgsarealer, en stor regulær kælder med disponible rum, som også har været brugt til salgsareal, og et lager med adgang via port. Der er desuden et tekøkken/personalerum, samt 2 toiletter. Der er flere adgange til ejendommen, herunder dobbeltdøre i glas mod Vestergade samt naboen Super Brugsen.
Boligen i tagetagen har egen indgang og er indrettet med to værelser, en stue, køkken, toilet med bad samt en udestue.

Køkken: Tekøkken/personalerum i forbindelse med butikken.

Opvarmning: Fjernvarme via radiatorer.

Parkering: Parkeringsmuligheder på ejendommen langs Toftevej.

Naboer: Nærmeste nabo er Super Brugsen, derudover er der boliger i området.

Læs mere

Vil du vide mere?

Christian Wang Rosenkilde

chw@nordicals.dk

+45 8915 3302

Toldboden 1, 6. sal , 8800 Viborg

+4570203911

8800@nordicals.dk

Besøg vores mæglerside

Lignende ejendomme

Til top