Gl. Aalborgvej 217, Troelstrup
9632 Møldrup

Sagsnr. 2453V

Ejendomstype

Etageareal

Grund

1.466 m²

14.454 m²

Kontantpris

Købspris pr. m²

Årlig driftsudgift

Årlig driftsudgift pr. m²

1.950.000 kr.

1.330 kr.

104.506 kr.

71 kr.

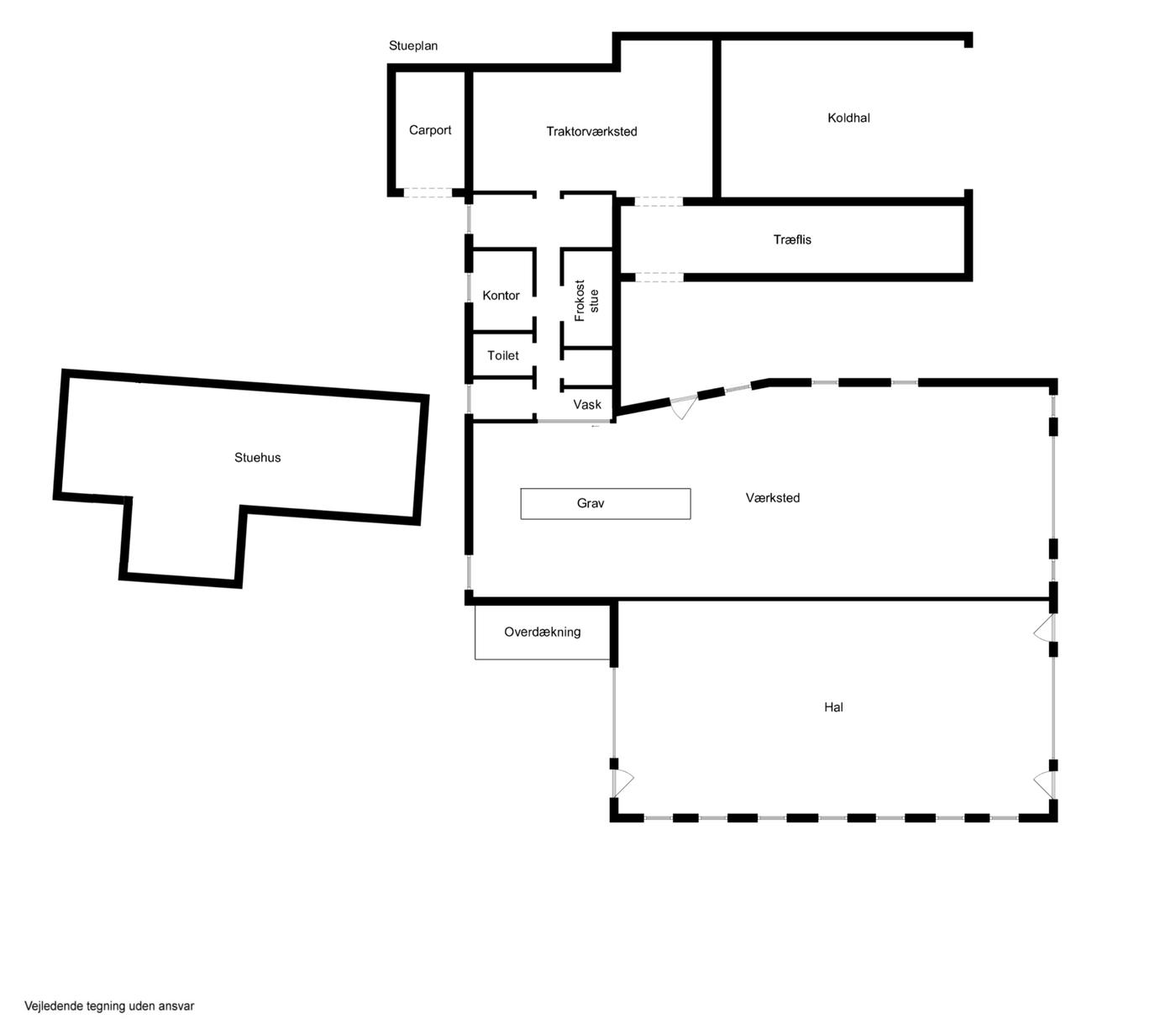
Værksteds-/ lagerejendom med tilhørende parcelhus

Ejendommen har oprindeligt været en landbrugsejendom, men har i en lang årrække været benyttet til autoværksted. Autoværkstedet er ikke i drift.

Værkstedsafsnittet består af 2 parallelle værkstedshaller med store porte i hver gavlende. Desuden forefindes tidligere staldbygning indrettet til kontor- / mandskab, reservedelslager og et mindre værksted.
?
Dertil består ejendommen af en åben lade. Værkstedsbygningerne er hovedsageligt opført med facader i stålplader, og tagene er sadeltage belagt med eternit- og ovenlysplader.
?
Der er monteret solcelleanlæg på værkstedsafsnittet, hvor der også er installeret calorifereblæsere.

Belysning: loftsarmaturer.

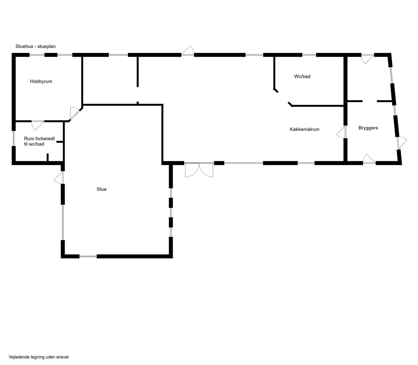
Parcelhuset er opført i 1900, og består af 334 m2 beboelse i 1,5 plan. ?Boligen er opført med facader i gule teglsten, og taget er et sadeltag belagt med brunt tegl.
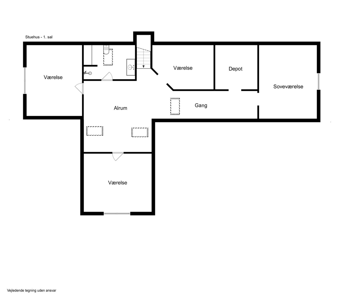
Stueetagen indeholder entré / bryggers med adgang til stort køkken-/alrum, badeværelse samt stor stue. Desuden hobbyrum med adgang til et ikke færdiggjort badeværelse. 1. sal indeholder gangareal med adgang til 4 værelser samt lokale forberedt til badeværelse. Gulvene er belagt dels med træparket og fliser samt en minde del med gulvtæppe.?

Tag: sadeltag belagt med eternittagplader og ovenlysplader på erhvervsdelen.
?
Udenomsarealer: terrasse-/, have-/ græsareal til boligen. Tilkørsels- og p-areal befæstet med stabilgrus. Den resterende del af grunden ligger ubenyttet hen / oplagsareal.
?
Opvarmning: træpillefyr / stokerfyr. Gulvvarme i det meste af boligen.
?
Ansvarsfraskrivelse: Ejendommen sælges med sædvanlig ansvarsfraskrivelse for et konkursbo.

Læs mere

Vil du vide mere?

Morten Lundhøj

mol@nordicals.dk

+45 8915 3301

Toldboden 1, 6. sal , 8800 Viborg

+4570203911

8800@nordicals.dk

Besøg vores mæglerside

Lignende ejendomme

Til top