Frederikshavnsvej 328
9800 Hjørring

Sagsnr. 2240919

Ejendomstype

Etageareal

Energiklasse

1.588 m²

A2010

Årlig leje

Leje pr. m²

Depositum

Årlig driftsudgift

Årlig driftsudgift pr. m²

1.041.600 kr.

656 kr.

520.800 kr.

33.348 kr.

21 kr.

Markant detaillejemål med attraktiv placering i Hjørring

Markant detaillejemål med attraktiv placering i Hjørring

Lejemålet er del af butikscenter sammen med Ilva, Pejsen og HTH.

Butikscentret har en unik placering med stor synlighed ud mod den trafikerede Frederikshavnsvej, som er hovedindfaldsvejen til Hjørring fra E39, Sindal samt Frederikshavn.

Bauhaus og Biltema er nærmeste naboer til Butikscentret og der er desuden kort afstand til Big Dollar, Jem & fix, Jysk og Hjørring by.

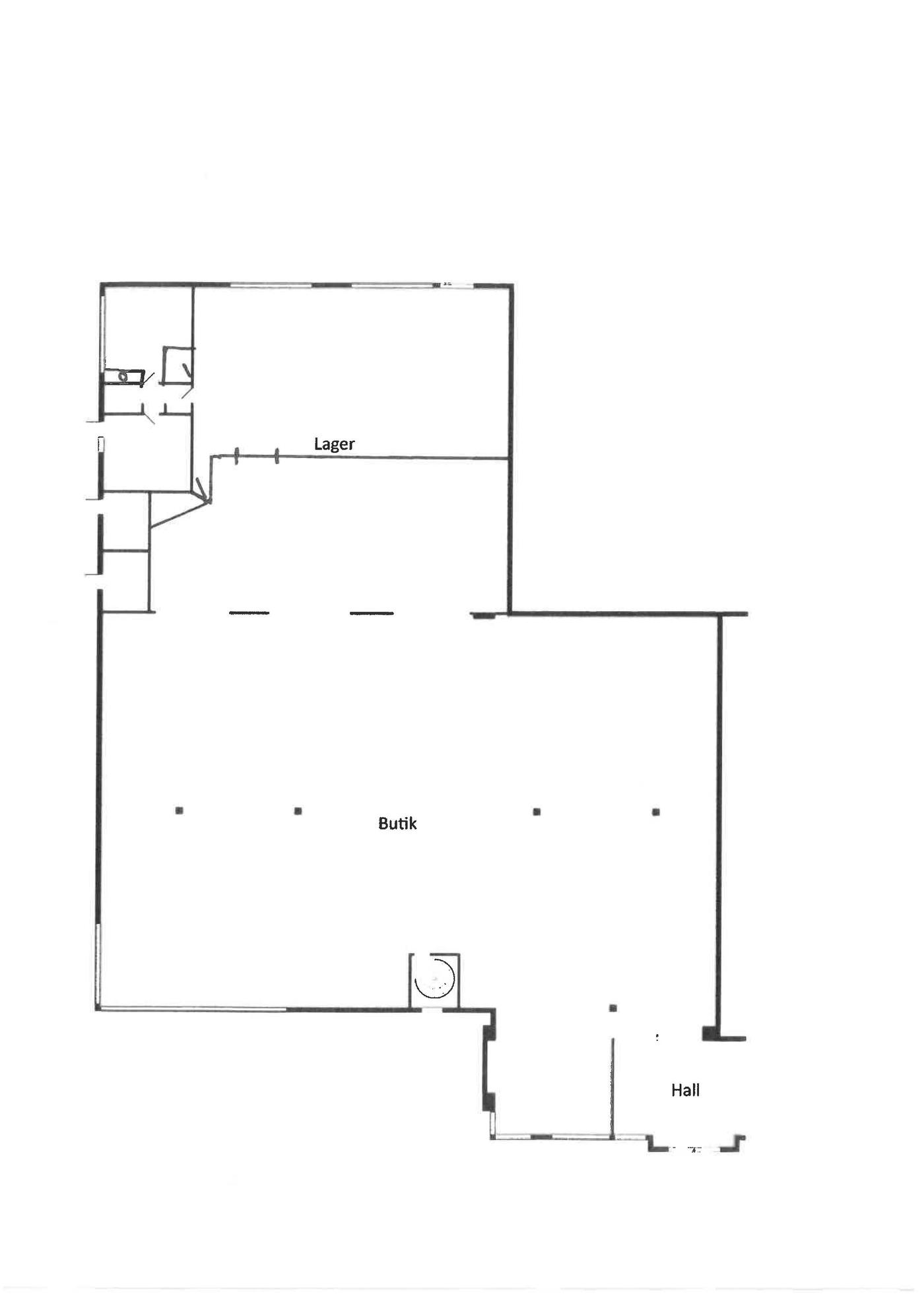
Lejemål er indrettet med stor fælles hall, flot lyst velindrettet butikslokale som har store udstillingsvinduer ud mod den fælles hall og parkeringspladsen, stor højloftet lagerlokale med port ud til lukket varegård, personaleafdeling med kontor, køkken samt toilet med bruser.

Lejemålet er forsynet med pæne gulve og god fast grundbelysning.

Desuden er der fine tilkørselsforhold samt stor fælles parkeringsplads, hvor der bl.a. kan etableres et udstillingsområde.

Kontakt Nordicals for yderligere oplysninger


Udlejer har ret til mellemleje.

Læs mere

Vil du vide mere?

Lignende ejendomme

Til top