Jernbanegade 14A
9800 Hjørring

Sagsnr. E4188

Ejendomstype

Etageareal

Grund

Energiklasse

765 m²

395 m²

C

Kontantpris

Købspris pr. m²

Afkast

Årlig lejeindtægt

Årlig lejeindtægt pr. m²

Årlig driftsudgift

Årlig driftsudgift pr. m²

3.495.000 kr.

4.569 kr.

8,38 %

415.913 kr.

544 kr.

132.067 kr.

173 kr.

Attraktiv udlejningsejendom i Hjørring Centrum

Nordicals Vendsyssel udbyder nu denne markante udlejningsejendom i Hjørring. Ejendommen er velbeliggende tæt ved Hjørrings gågade, banegård, teater og indkøbsmuligheder. Beliggenheden i den travle Jernbanegade, sikrer en lind strøm af forbipasserende, da Jernbanegade fungerer som et bindeled mellem banegården og gågaden.

Området omkring Jernbanegade er i rivende udvikling, og der arbejdes aktivt for at trække flere og flere folk til. Senest har Hjørring Kommune afsluttet en stor forvandling af den nærliggende "Mammutpladsen" i sommeren 2024, som har gjort området mere kunstnerisk og attraktivt for besøgende. Derudover er der på nabogrunden overfor, lige mellem Vendsyssel Teater og Jernbanegade, ved at blive opført Den Musiske Skole, som forventes færdig i løbet af foråret 2026.

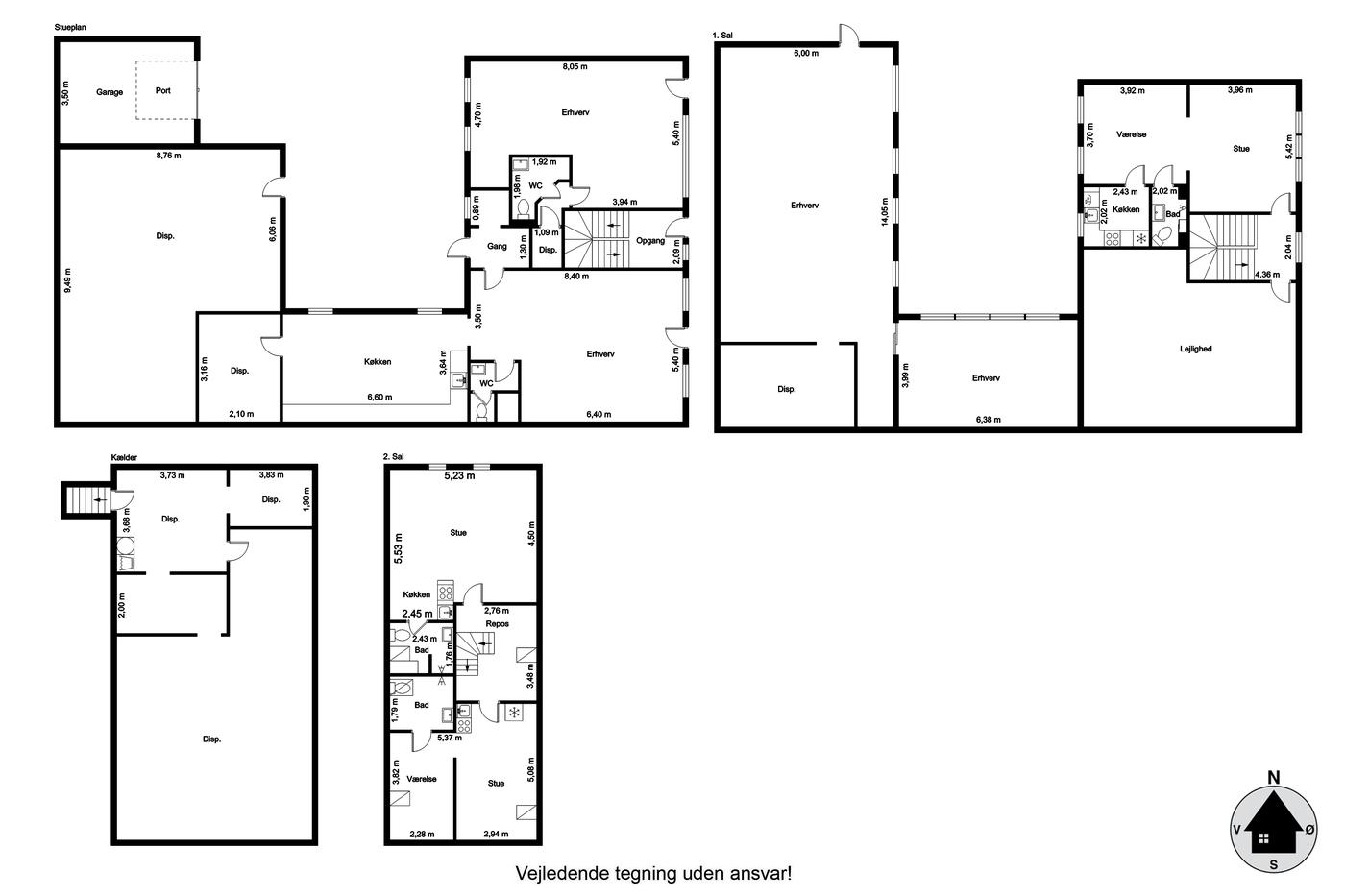
Bygningen er opført i 1885 og ombygget senest i 1997. Bygningens tag er af fibercement med asbest og har facader af mursten med store vinduespartier i bunden til erhvervslejemålene. Ejendommen har et erhvervsareal på 547 m2 fordelt på 4 erhvervslejemål samt et beboelsesareal på 218 m2 fordelt på 4 beboelseslejemål.

Opvarmnings sker ved fjernvarme.

Læs mere

Vil du vide mere?

Simon Wiehl

swi@nordicals.dk

+4521516368

Midtpunkt 58, 9900 Frederikshavn

+4598426400

9900@nordicals.dk

Besøg vores mæglerside

Lignende ejendomme

Til top