Nørregade 25A
9800 Hjørring

Sagsnr. E3664

Ejendomstype

Etageareal

Grund

Energiklasse

313 m²

246 m²

E

Kontantpris

Købspris pr. m²

Afkast

Årlig lejeindtægt

Årlig lejeindtægt pr. m²

Årlig driftsudgift

Årlig driftsudgift pr. m²

4.795.000 kr.

15.319 kr.

6,38 %

367.476 kr.

1.174 kr.

63.808 kr.

204 kr.

Udlejningsejendom med 5 boliglejemål og 1 erhvervslejemål

Nordicals Vendsyssel udbyder Nørregade 25A i Hjørring.
Ejendommen er opført i 1923 og har i 2017 gennemgået en større renovering og istandsættelse. Facaden mod Nørregade er af røde
teglsten og mod gården med gule sten. Taget er sadeltag med
eternitplader.

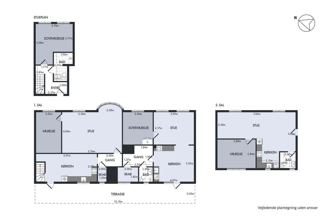
Ejendommen på Nørregade 25A rummer et areal på 313 m2.
Gården til ejendommen er flisebelagt og adgangen hertil er via gitterport. Fra gården er der adgang til svalegang hvor ejendommens 1. sal er beliggende.

Ejendommen indeholder fem boliglejemål og ét mindre erhvervslejemål, som har og fortsat er lejet ud til samme erhvervslejer i mere end
10 år. Nuværende ejer af ejendommen har løbende moderniseret lejemålene i forbindelse med lejerskifte.

Lejlighederne er i rigtig flot stand og fremstår lyse og indbydende med en særligt god loftshøjde. Lejemålene indeholder nydelige
badeværelser, præsentable og velfungerende køkkener fra 2017 og frem. Lejlighederne består af en lejlighed på 94 m2 der er i
stueetagen og forsætter på noget af 1. salen, derudover er der en lejlighed på 1. sal på 62 m2. Endvidere er der to mindre lejligheder
på ejendommens 2. sal på hver 46 m2. Lejlighederne på 2. sal er med fritlagte bjælker.

Et enkelt lejemål beliggende i Nørregade 25B er nuværende ejer ved at konvertere om fra et erhvervslejemål til boliglejemål.

Alt i alt en ejendom der har gennemgået en større renovering, men fortsat passer rigtig godt ind i den gamle bydel i Hjørring.

Ejendommen opvarmes via fjernvarme.

Læs mere

Vil du vide mere?

Simon Wiehl

swi@nordicals.dk

+4521516368

Midtpunkt 58, 9900 Frederikshavn

+4598426400

9900@nordicals.dk

Besøg vores mæglerside

Lignende ejendomme

Til top