Toftegade 13
9800 Hjørring

Sagsnr. E3453

Ejendomstype

Etageareal

Grund

Energiklasse

248 m²

596 m²

D

Centralt beliggende boligudlejningsejendom med 5 lejemål

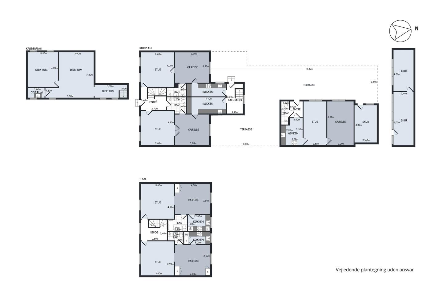
Nordicals Vendsyssel kan hermed udbyde boligudlejningsejendom med 5 beboelseslejligheder centralt beliggende i Hjørring. Fra ejendommen er der nem adgang til hverdagens gøremål. Heriblandt bør nævnes offentlig transport, indkøbsmuligheder, skole og uddannelse. Ejendommen på Toftegade er fordelt med ejendommen med fire lejligheder og en tidligere garage der er ændret til beboelses lejemål. Den primære bygning er opført i 1902 og fremstår med pudset facade og eternittag. Den anden ejendom er opført i 1974 og fremstår ligeledes med pudset facade og med ståltag. Boligarealerne i lejlighederne fordeler sig med 5 lejligheder på henholdsvis 55 m², 55 m², 44 m², 44 m² og 50 m².
Fælles for lejemålene er de fremstår lyse og med en god planløsning.
Til ejendommen er der en god stor have/gårdmiljø med græs og flisebelægning. Endvidere står der et udhus bagerst på grunden, der kan benyttes til opmagasinering.
Opvarmningen sker ved fjernvarme.

Læs mere

Denne ejendom er solgt

Vil du vide mere?

Simon Wiehl

swi@nordicals.dk

+4521516368

Midtpunkt 58, 9900 Frederikshavn

+4598426400

9900@nordicals.dk

Besøg vores mæglerside

Lignende ejendomme

Til top