Vendelbogade 28, 1. sal
9800 Hjørring

Sagsnr. K1405-32

Ejendomstype

Etageareal

280 m²

Årlig leje

Leje pr. m²

Depositum

Årlig driftsudgift

Årlig driftsudgift pr. m²

126.000 kr.

450 kr.

63.000 kr.

14.000 kr.

50 kr.

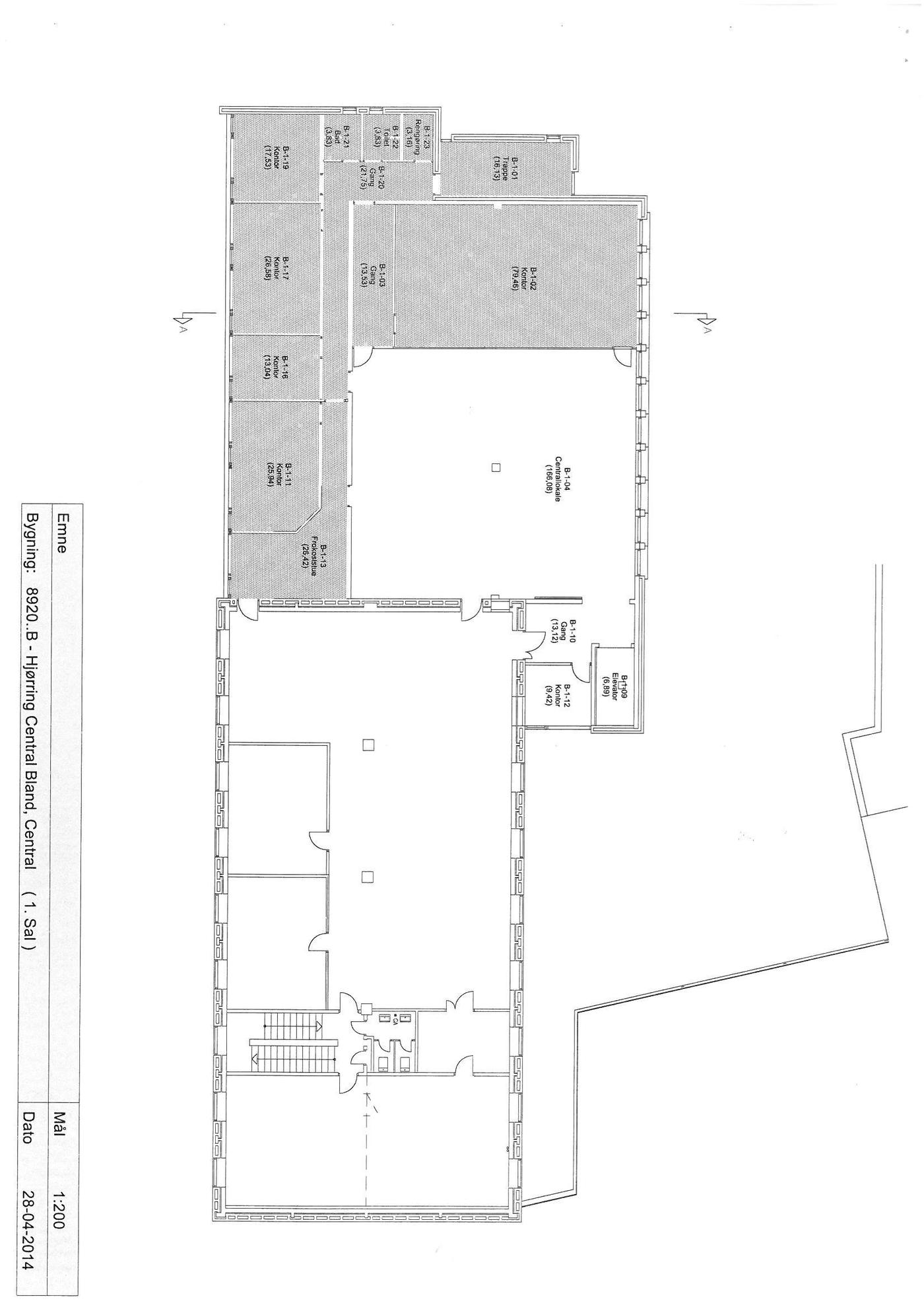
Kontor- eller kliniklejemål i Hjørring City

Særdeles velbeliggende fremlejemål beliggende i det centrale Hjørring forholdsvis tæt ved Springvandspladsen samt Hjørrings butikscenter - Metropol.

Der er tale om kontor- eller kliniklokaler, som er beliggende på 1. sal i veldisponeret ejendom i centrum af Hjørring. Adgang til lejemålet foregår via trappeopgang. Fremlejemålet er på 280 m² og består af fælles gangareal, stort regulært kontorlandskab, 4 separate kontorer, frokoststue, toiletfaciliteter, depotrum samt garderobe.

Endvidere er der mulighed for at medleje yderligere arkivplads i ejendommens kælder, samt mulighed for at medleje parkeringspladser.

Fremlejemålet har senest været anvendt af TDC A/S.

Læs mere

Vil du vide mere?

Nikolaj Kjelder

nik@nordicals.dk

+4561365735

Skibbrogade 3, 2. sal, 9000 Aalborg

+4598134000

9000@nordicals.dk

Besøg vores mæglerside

Lignende ejendomme

Til top