Vendelbogade 39
9800 Hjørring

Sagsnr. E4297

Ejendomstype

Etageareal

Grund

Energiklasse

315 m²

434 m²

B

Kontantpris

Købspris pr. m²

Afkast

Årlig lejeindtægt

Årlig lejeindtægt pr. m²

Årlig driftsudgift

Årlig driftsudgift pr. m²

3.495.000 kr.

11.095 kr.

7,13 %

303.600 kr.

964 kr.

59.766 kr.

190 kr.

Attraktiv investeringsejendom med 5 beboelseslejemål i Hjørring

Nordicals Vendsyssel udbyder her Vendelbogade 39 - en investeringsejendom med 2 etageejendomme som begge fremstår velholdte og samlet indeholder 5 lejemål.
En beliggenhed der giver let adgang til alverdens gøremål i lige midtbyen af Hjørring.

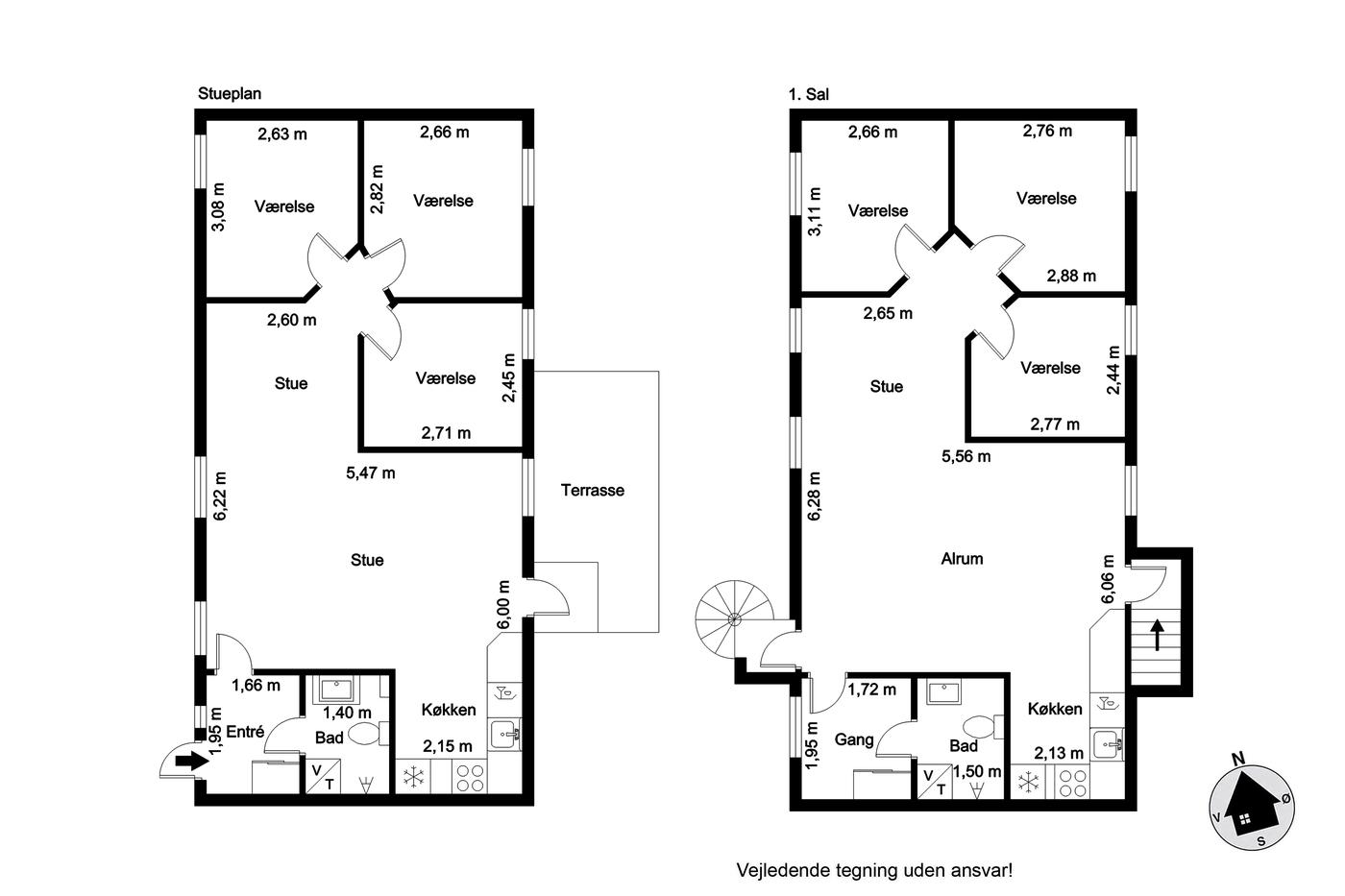
Ejendommen ud til Vendelbogade er opført i 1860 og om-/tilbygget i 1990 og indeholder samlet 3 beboelseslejemål. Ejendommen er i to plan og byder på fælles gårdhave samt parkeringsmuligheder. Ejendommen fremstår hvidmalet og med sort eternittag.

Ejendommen bagerst på grunden er opført i 1920 og om-/tilbygget i 1990, og indeholder samlet to beboelseslejemål. Ejendommen er ligeledes på to plan, men adskiller sig ved god planløsning. Ejendommen fremstår hvidmalet og med tagpap.

Til ejendommen hører desuden en grund med asfalteret gårdmiljø og gode parkeringsmuligheder.

Læs mere

Vil du vide mere?

Simon Wiehl

swi@nordicals.dk

+4521516368

Midtpunkt 58, 9900 Frederikshavn

+4598426400

9900@nordicals.dk

Besøg vores mæglerside

Lignende ejendomme

Til top