Industrivej 8
9830 Tårs

Sagsnr. E3941

Ejendomstype

Etageareal

Grund

Energiklasse

992 m²

3.000 m²

B

Produktionsejendom med mange muligheder i Tårs

Nordicals Vendsyssel udbyder velbeliggende erhvervsejendom i Tårs. Bygningen er beliggende i industriområde, hvor der er gode tilkørsels- og parkeringsmuligheder. Der er ingen tvivl om, at ejendommen har en god placering med omkringliggende virksomheder og dermed er der et godt kundegrundlag.
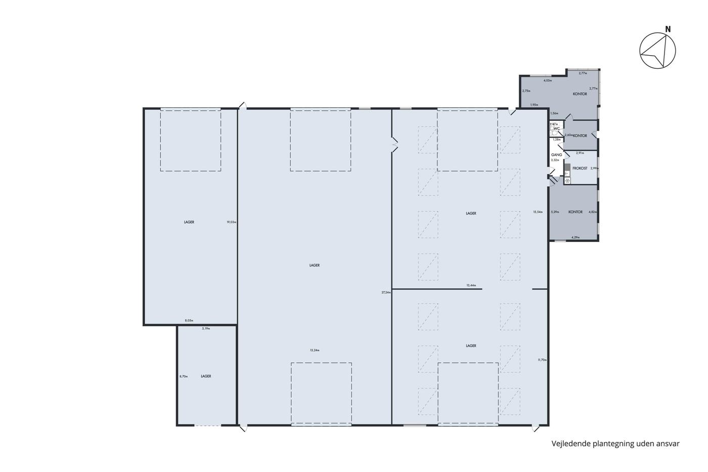
Ejendommen er opført dels i betonelementer, belagt med marmorsten og dels i ståltrapezplader. Der er stålbuekonstruktion med grå eternittag som tagbelægning. Der er troldtektplader som loftbeklædning og bygningerne fremstår meget velholdt både indvendigt ud og udvendigt. Lagerdelen består af 2 stk sammebyggede haller, isoleret og opvarmet. Der er store portåbninger i begge ender af hallerne. Lagerdelen er endvidere med god loftshøjde med loft til kip og kørefaste støbte gulve. Derudover er der uisoleret lagerhal med port.

Kontordelen af ejendommen er indrettet med entre, to store kontorer, toilet og kantine.
Hele ejendommens matrikel er indhegnet og med elektrisk port.

Læs mere

Denne ejendom er solgt

Vil du vide mere?

Simon Wiehl

swi@nordicals.dk

+4521516368

Midtpunkt 58, 9900 Frederikshavn

+4598426400

9900@nordicals.dk

Besøg vores mæglerside

Lignende ejendomme

Til top