Dalsagervej 10
9850 Hirtshals

Sagsnr. E4285

Ejendomstype

Etageareal

Grund

1.852 m²

8.005 m²

Kontantpris

Købspris pr. m²

Årlig driftsudgift

Årlig driftsudgift pr. m²

6.695.000 kr.

3.615 kr.

164.235 kr.

89 kr.

Attraktiv lager- og logistikejendom i eftertragtet erhvervsområde

Nordicals Vendsyssel udbyder hermed en attraktiv og energioptimeret erhvervsejendom med en unik beliggenhed overfor Hirtshals Transportcenter, hvor der er direkte til- og frakørsel til E39 samt kort afstand til Hirtshals Havn. Ejendommen fremstår moderne og bæredygtig efter en omfattende renovering, hvor nuværende ejerkreds har investeret betydeligt i både visuel opgradering og grønne løsninger, herunder solcelleanlæg på taget.

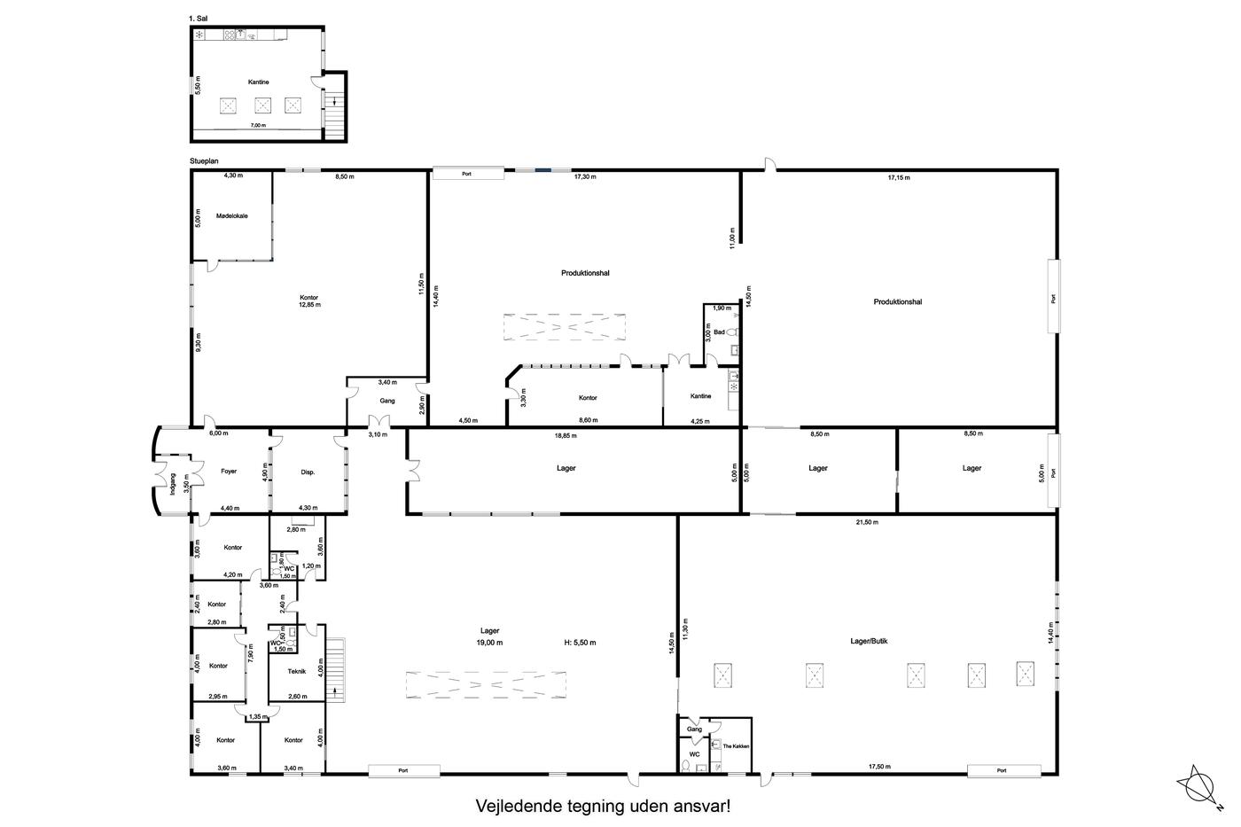
Bygningen rummer et storkontor med facade mod Dalsagervej, som er forbundet til en kontorgang med teknikrum, tre gode kontorer og mødelokale. Bag receptionen findes et disponibelt lokale med adgang til produktionshallen, der er opdelt i to enheder på hver cirka 250 m² og indeholder kontor-, møde- og kantinefaciliteter. Herfra er der også adgang til mellemlager samt værksted med portadgang. I bygningens bagerste del findes showroom og lager med tilhørende mindre lagerlokaler, og alle lejemål har nye porte.

Ejendommen er ideel til både købers egen anvendelse og som kombinationsløsning, hvor der er mulighed for at drive virksomhed samtidig med udlejning. Til ejendommen hører desuden et jordstykke på 2.583 m² beliggende på Pastelvej 4, hvor lokalplanen giver mulighed for at bebygge op til 50 procent af arealet, hvilket skaber gode muligheder for fremtidig udvidelse.

Læs mere

Vil du vide mere?

Simon Wiehl

swi@nordicals.dk

+4521516368

Midtpunkt 58, 9900 Frederikshavn

+4598426400

9900@nordicals.dk

Besøg vores mæglerside

Lignende ejendomme

Til top