Nørregade 11
9850 Hirtshals

Sagsnr. E2629

Ejendomstype

Etageareal

Grund

Energiklasse

557 m²

601 m²

G

Udlejningsejendom med central beliggenhed og gode parkeringsforhold

Udlejningsejendom med central beliggenhed.

Ejendommen er beliggende centralt på strøget i Hirtshals og er nabo til Jyske Bank, herretøjsbutik, pizzaria m.v. Ejendommen har 1 erhvervslokale samt 2 boliglejemål. Erhvervslokalet har tidligere været udlejet til tøjbutik. Der er gode parkeringsfaciliteter til ejendommen.

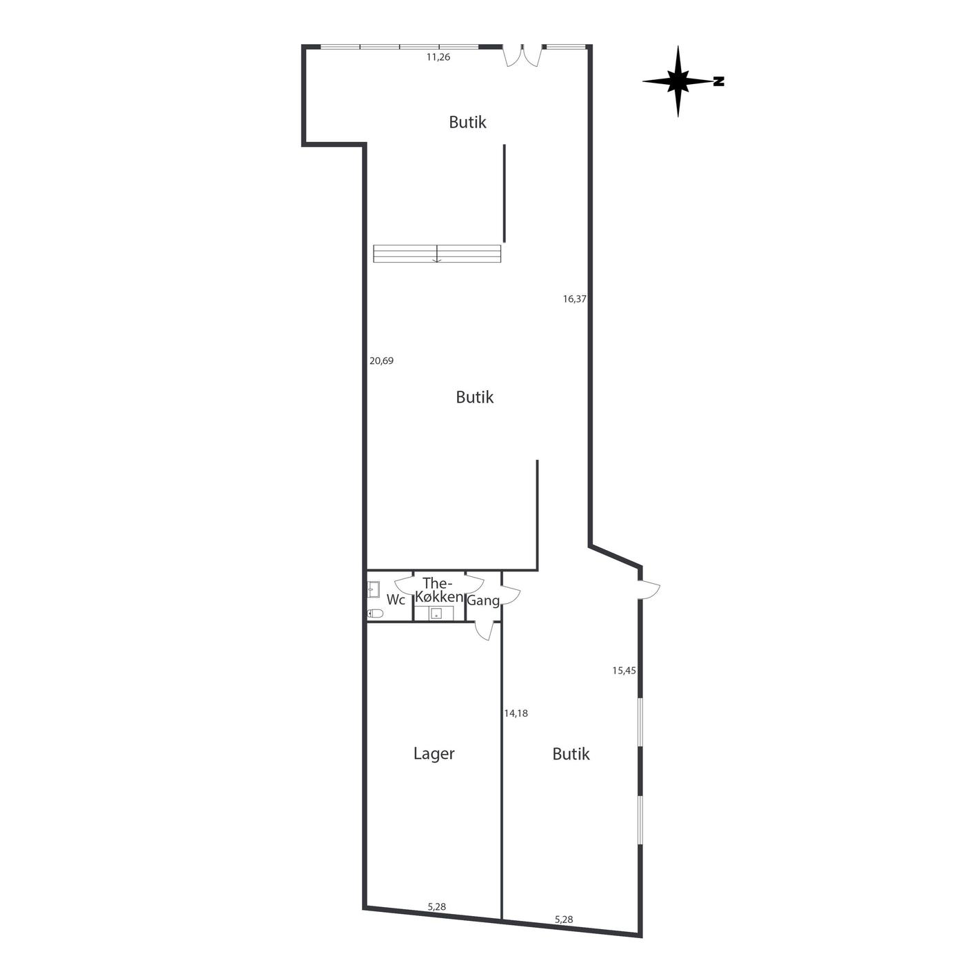
Erhvervslokalet er bestående af et ekspeditionslokale i forskudt plan (2 trin op) med en god fordeling af lokalet i flere sektioner. Bagerst i lokalet er der en mindre gang til endnu et ekspeditionslokale. Baglokalet er indrettet med stort lager og toilet samt kantine. Der er i øvrigt et mindre køkken med køleskab samt toilet med håndvask. Ud over erhvervslokalet er der 2 boligenheder, hvoraf den ene er udlejet.

Der er gode parkeringsfaciliteter til ejendommen.

Læs mere

Denne ejendom er solgt

Vil du vide mere?

Tommy Kruse Fuglsang

tkf@nordicals.dk

+4520933555

Midtpunkt 58, 9900 Frederikshavn

+4598426400

9900@nordicals.dk

Besøg vores mæglerside

Lignende ejendomme

Til top