Nørregade 31
9850 Hirtshals

Sagsnr. E4157

Ejendomstype

Etageareal

Grund

Energiklasse

374 m²

235 m²

C

Kontantpris

Købspris pr. m²

Afkast

Årlig lejeindtægt

Årlig lejeindtægt pr. m²

Årlig driftsudgift

Årlig driftsudgift pr. m²

1.395.000 kr.

3.730 kr.

9,97 %

192.000 kr.

513 kr.

52.897 kr.

141 kr.

Centralt beliggende investeringsejendom i Hirtshals

Centralt beliggende investeringsejendom i Hirtshals.

Nordicals Vendsyssel udbyder en spændende investeringsejendom med blandet bolig og erhverv. Ejendommen er beliggende ud til rundkørsel ved Nørregade, her er der god trafik og en spændende lokation. Ejendommen er placeret midt i byen og derved er der kort afstand til det meste og et godt byliv i og omkring ejendommen.

Bygningen fremtræder præsentabel og med stor facadeværdi ud mod rundkørslen, hvor ejendommen får optimal synlighed. Facaden fremtræder delvist med store vinduespartier og træbeklædning. Ejendommen er med fladt tag og vinduer i træ.

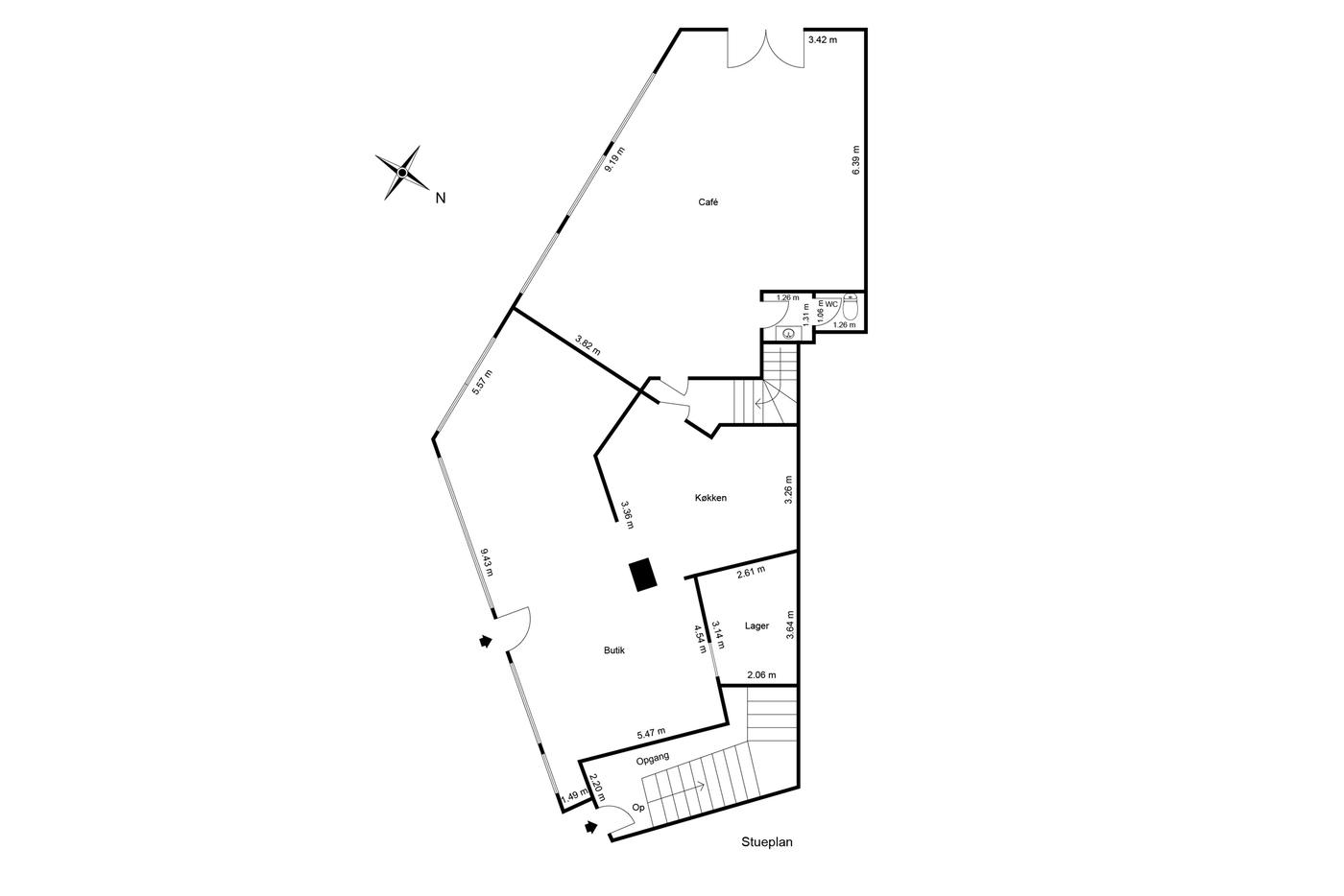
Erhvervslokale 1:
Udlejet til Kødboxen med delikatesse afdeling med dertilhørende køkken og lager. Lokalet har en god vinduesfacade ud mod rundkørslen.
Erhvervslokale 2:
Udlejet til cafe. Indeholder stort åbent lokale med dertilhørende toilet. Lokalet har en god facadeværdi.
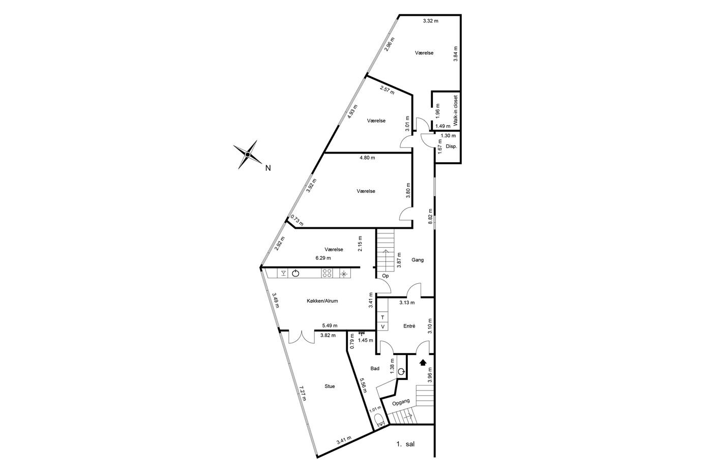
Bolig etage 1:
Lejligheden byder på stort bryggers, hvorfra der er adgang til badeværelse. Fra bryggers er der adgang til gang der giver adgang til stort køkken med dertilhørende stue. Endvidere er der fra gangen adgang til soveværelse, 2 gode værelser og 2 mindre disponible rum. Fra lejligheden er der direkte adgang til stor tagterrasse. Lejligheden er delvist moderniseret og renoveret.

Til ejendommen er der stor kælder.

Læs mere

Vil du vide mere?

Simon Wiehl

swi@nordicals.dk

+4521516368

Midtpunkt 58, 9900 Frederikshavn

+4598426400

9900@nordicals.dk

Besøg vores mæglerside

Lignende ejendomme

Til top