Nyvangen 7
9870 Sindal

Sagsnr. E4178

Ejendomstype

Etageareal

Grund

1.240 m²

4.563 m²

Kontantpris

Købspris pr. m²

Årlig driftsudgift

Årlig driftsudgift pr. m²

2.000.000 kr.

1.613 kr.

36.735 kr.

30 kr.

Spændende autoværksted centralt i Sindal

Nordicals Vendsyssel udbyder hermed denne erhvervsejendom beliggende på Nyvangen 7 i Sindal til salg. Ejendommen er beliggende central i Sindal og omgivet af flere lokale erhvervsdrivende.

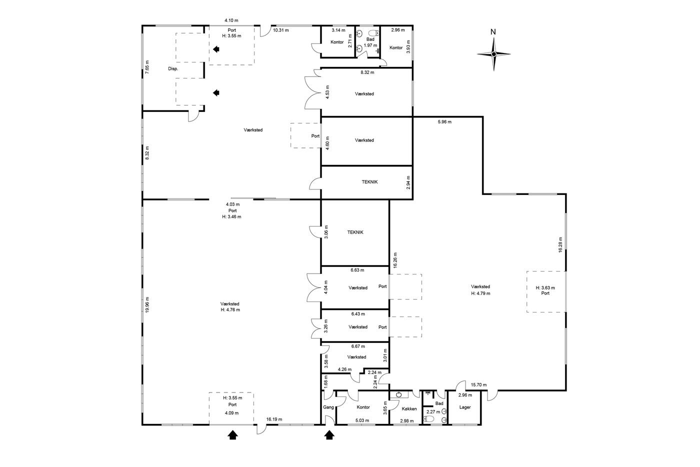
Bygningerne er opført i 1964 og 1977 hvoraf bygning 1 er til-/ombygget i 1986 og fremstår i særdeles god stand. Hovedbygningen er opført i røde sten og de 2 værkstedshaller er opført med limtræsbuer og eternittag og den sidste værkstedshal er med stålbuer og eternittag. Der er built-up tag med tagpap over administrationsafdelingen og der er stålpladetage over dele med skrående taghældning over dele af malerkabinerne. Derudover er der dele af fyr-/teknikrummet som er beklædt med stålprofilplader udvendigt.

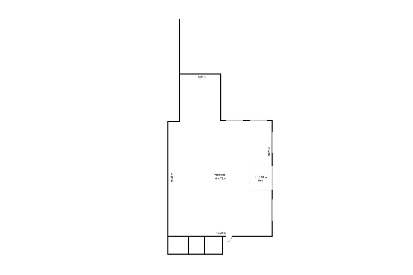
Ejendommen har tidligere været anvendt til autolakeringsværksted og derfor er ejendommen indrettet med 2 malerkabiner, 2 varmekabiner, alt i ventilation m.m. I forreste værkstedshal er der 3 stk. lifte og stor portåbning.

Til ejendommen er der administrationsafdeling med kontor, entre, køkken/kantine, badeværelse med bruseniche, omklædningsrum. Der er elvarme i administrationsafdelingen.

Der er ventilationsanlæg med rumudluftning, der er afløb i gulvene i de 2 værkstedshaller og vaskerummet, med afløb igennem godkendt sandfangsudskiller.

Hele forpladsen og tilkørslen er belagt med asfalt.

Ejendommen opvarmes med oliefyr og elvarme.

Læs mere

Vil du vide mere?

Hans Skovgaard

hss@nordicals.dk

+4540284575

Midtpunkt 58, 9900 Frederikshavn

+4598426400

9900@nordicals.dk

Besøg vores mæglerside

Lignende ejendomme

Til top