Ole Rømers Vej 4A
9870 Sindal

Sagsnr. E3894

Ejendomstype

Etageareal

Grund

Energiklasse

1.533 m²

31.411 m²

D

Markant og arkitektonisk kontorbygning i Sindal

Nordicals Vensyssel har nu fornøjelsen af at udbyde en af de mest markante ejendomme i Sindal til salg.

Her finder du - i udkanten af byen - 1.533 gode m², den gode placering, gør ejendommen yderst interessant for mange virksomheder, og der er hermed tale om en ejendom med rigtig stort potentiale. Derudover er der gode parkeringsmuligheder lige ved ejendommen, så kunder og ansatte nemt kan komme til.

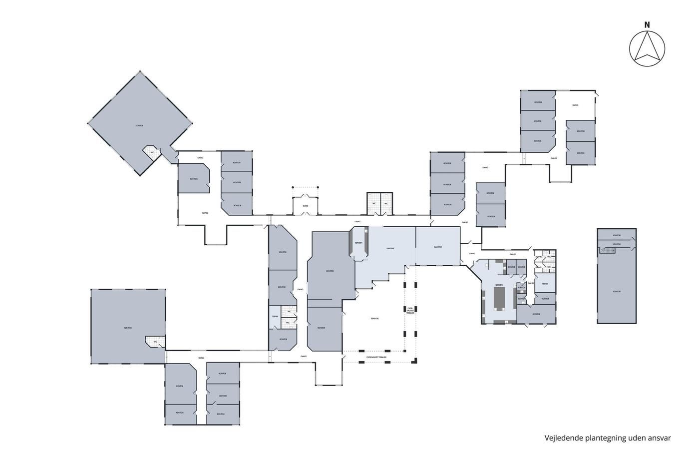
Ejendommen på Ole Rømers Vej er særdeles velegenet som kontordomicil eller til institutionsformål. Ejendommen er indrettet med 32 kontorer i varierende størrelser, toilet/badeværelser fordelt rundt i gangarealerne, kantine med dertilhørende industrikøkken, teknikrum samt gode og åbne gangarealer.

Kontakt Nordicals Vendsyssel for nærmere info om denne unikke ejendom.

Læs mere

Denne ejendom er solgt

Vil du vide mere?

Simon Wiehl

swi@nordicals.dk

+4521516368

Midtpunkt 58, 9900 Frederikshavn

+4598426400

9900@nordicals.dk

Besøg vores mæglerside

Lignende ejendomme

Til top