Ved Banen 14
9870 Sindal

Sagsnr. E3319

Ejendomstype

Etageareal

Grund

Energiklasse

841 m²

4.185 m²

C

Årlig leje

Leje pr. m²

Depositum

360.000 kr.

428 kr.

180.000 kr.

Regulært lejemål

Ejendommen er opført i 2008 til dagligvarebutik.

Konstruktion og facader: Opført som søjle-/dragerkonstruktion i beton med ydervægge i koksgrå betonelementer.

Tag: Built up (fladt tag) belagt med tagpap.

Vinduer: Aluvinduer og døre i indgangsparti.

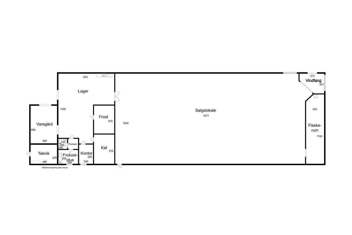
Indretning: Vindfang med adgang til stort rektangulært forretningslokale. Gulv er belagt med fliser. Loftshøjde ca. 3 meter. Adgang herfra til lager, frokoststue, kontor og toilet. Endvidere overdækket varegård samt teknikrum på ialt 50 m2. Forretningsafsnittets areal udgør ca. 540 m2 og lager-/personaleafsnittets areal udgør ca. 210 m2. Rampetilkørsel til lagerafsnittet.

Ventilation/køl: CTS-anlæg

Belysning: Systemloft med indbygget belysning

EDB-stik, telefoni, internet (fibernet)

El: 125 amp

Parkering: stort befæstet tilkørsels- og P-areal belagt med SF-betonsten - ca. 55 pladser

Naboer: Kirkens Korshær genbrugsbutik, 1-2-3 Tankanlæg, Rema 1000 dagligvarebutik, Bonus Tankanlæg og Superland dagligvarebutik.

Læs mere

Vil du vide mere?

Hans Skovgaard

hss@nordicals.dk

+4540284575

Midtpunkt 58, 9900 Frederikshavn

+4598426400

9900@nordicals.dk

Besøg vores mæglerside

Lignende ejendomme

Til top