Nordvej 12, 1., Vangen
9900 Frederikshavn

Sagsnr. E4209

Ejendomstype

Etageareal

Grund

372 m²

12.433 m²

Årlig leje

Leje pr. m²

240.000 kr.

645 kr.

Kontorlejemål med havudsigt beliggende ud til E45

Nordicals Vendsyssel udbyder hermed et spændende kontorlejemål beliggende på Nordvej 12 i Vangen.

Lejemålet er beliggende som en del af en strategisk velbeliggende logistikhub, der fungerer som knudepunkt for færgetrafikken til og fra Frederikshavn Havn, der har daglige adgange til Læsø og Gøteborg. Fra Nordvej 12 er man kun få kilometer fra henholdsvis Frederikshavns sydlige byskilt og afkørslen til Sæby Nord - og med en placering direkte ud til motorvejsnettet ved E45.

Fra lejemålet på 1. sal får man som lejer en helt fantastisk uhindret udsigt over Kattegat, hvor man kan følge skibsfarten døgnet rundt. Lejemålet er velegnet til forskellige typer af virksomheder, der har behov for en tilgængelighed og nem adgang til motorvejsnettet til Aalborg og/eller direkte til hovedvejen til Skagen.

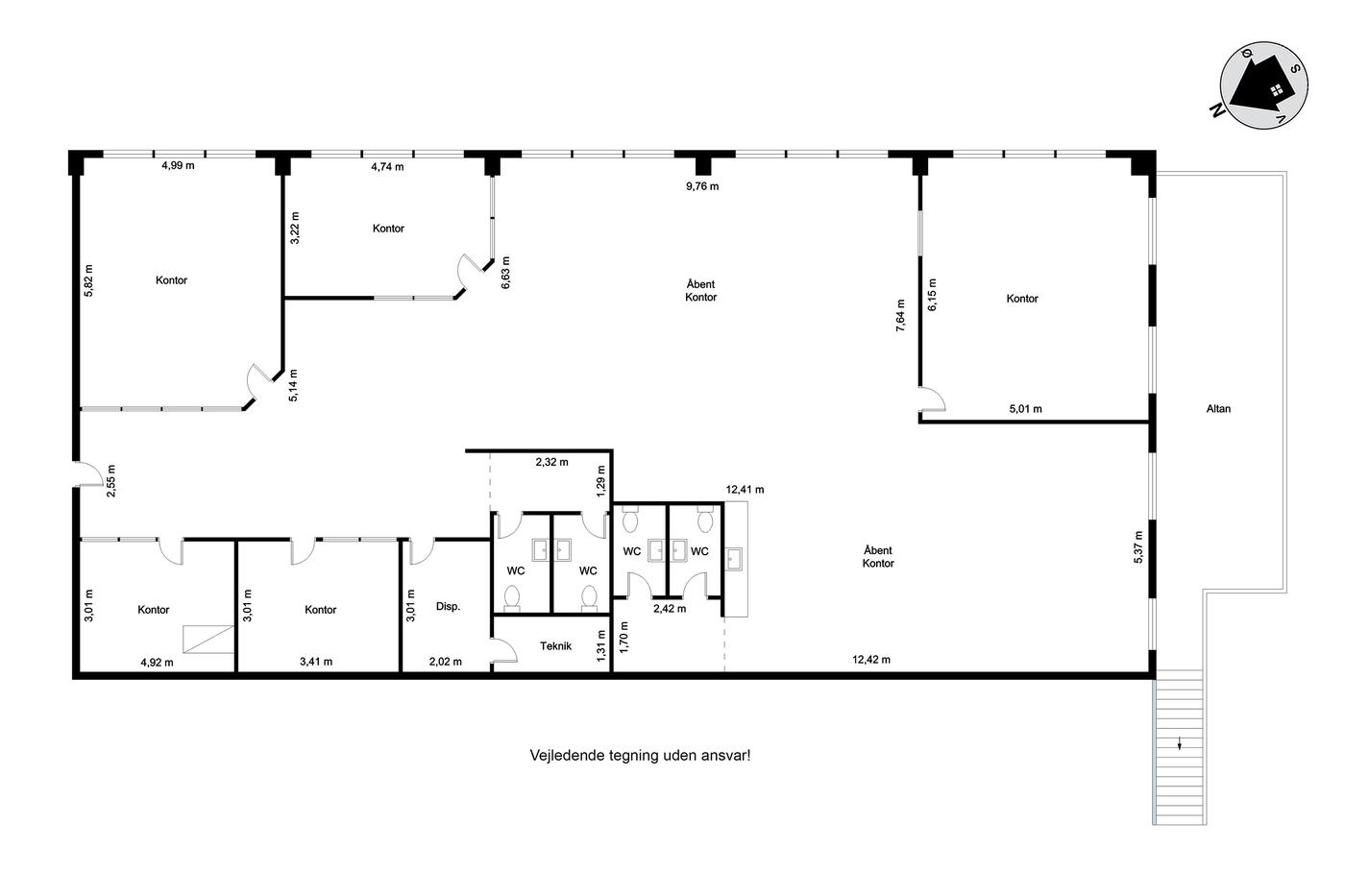
Der er tale om leje af en del af 1. salen, som også huser rejseeksperten Happydays, der sidder på den resterende del af etagen. I underetagen finder man transportfirmaet Fiskelogistik og MAN Nordjylland. Kontorlejemålet har et areal på ca. 372 m², der bl.a. er indrettet med et storrumskontor og flere aflukkede kontorer. Adgangen til lejemålet sker via trappe fra bygningens præsentable indgangsparti i underetagen.

For den rigtige lejer vil der være muligheder for eksponering via facadeskilt på bygningen, og lejemålet har en god tilgængelighed og parkeringspladser lige udenfor døren.

Alt i alt et særdeles attraktivt kontorlejemål til virksomheden, der ønsker et funktionelt kontormiljø med enestående havudsigt og med mulighed for eksponering ud over det sædvanlige.

Læs mere

Vil du vide mere?

Tommy Kruse Fuglsang

tkf@nordicals.dk

+4520933555

Midtpunkt 58, 9900 Frederikshavn

+4598426400

9900@nordicals.dk

Besøg vores mæglerside

Lignende ejendomme

Til top