Saltebakken 29
9900 Frederikshavn

Sagsnr. E4464

Ejendomstype

Etageareal

3.116 m²

Årlig leje

Leje pr. m²

Depositum

1.351.600 kr.

434 kr.

675.800 kr.

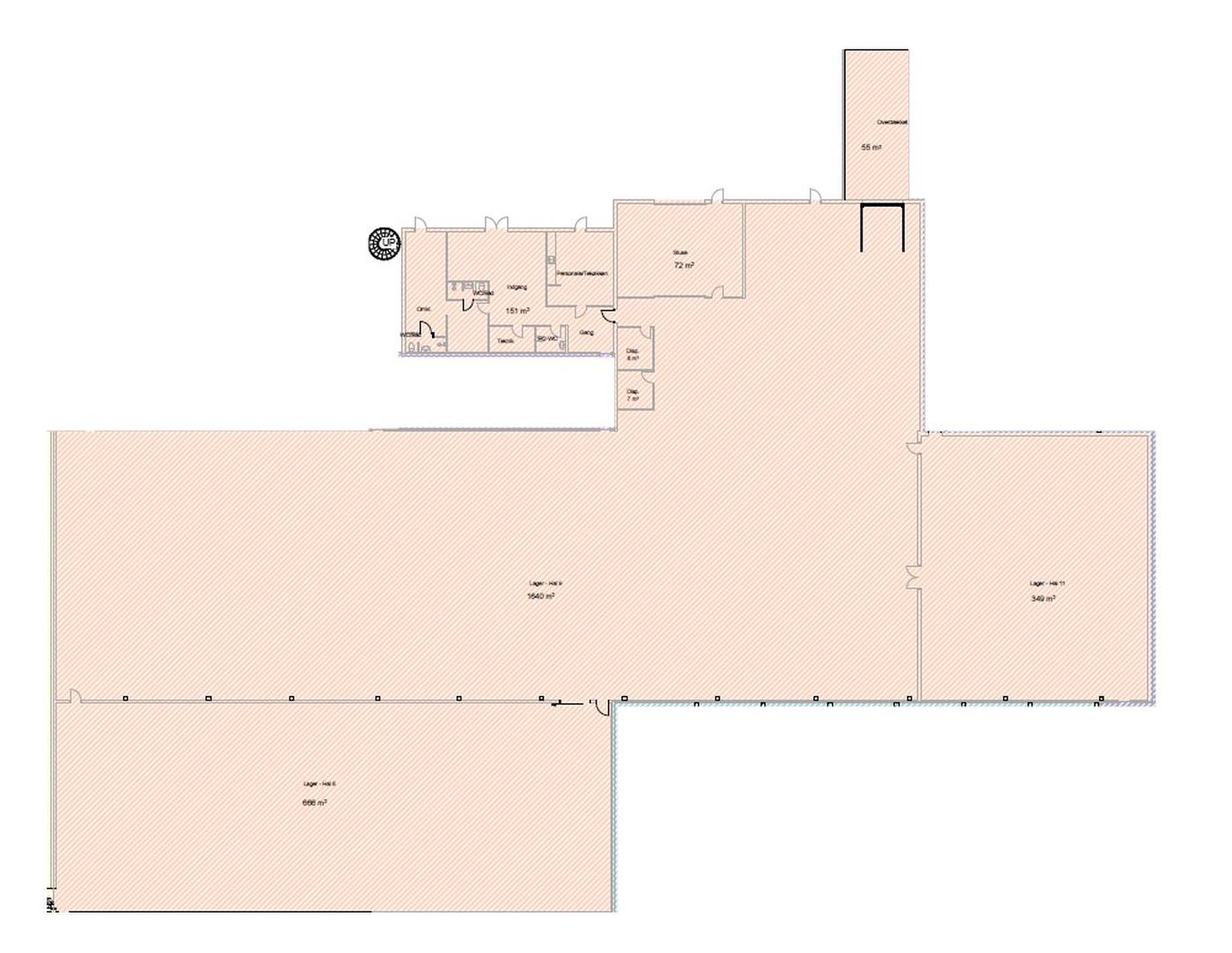
Indflytningsklart lager direkte ud til E45

Indflytningsklart lager med god loftshøjde og tilhørende administration med fine faciliteter.

Lejemålet er beliggende i en totalrenoveret og yderst præsentabel erhvervsbygning i den sydlige del af Frederikshavn. Fra ejendommen er der adgang til E45, og dermed fungerer lejemålet optimalt som logistik hub, både i forhold til adgangen til motorvejsnettet og til havneområdet på Frederikshavn Havn.

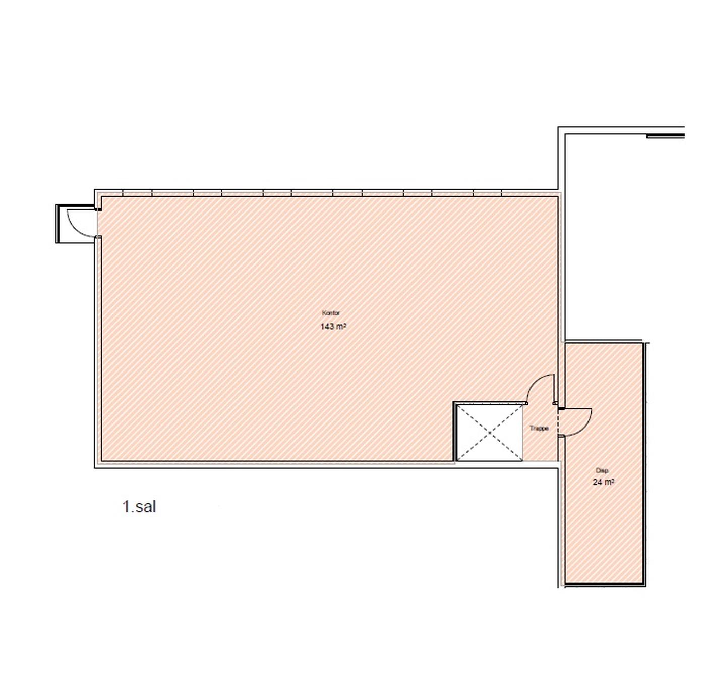
Lejemålet overtages indflytningsklart og med fine adgangsforhold samt præsentabel indgangsparti, hvorfra man har administration med tilhørende kontorer, kantine, velfærd m.v. En mindre del af administrationen er beliggende på 1. sal i stort åbent kontorlandskab.

Lageret er lejemålets omdrejningspunkt, som er veldisponeret, og der er fine tilkørselsforhold til af- og pålæsning. Lejemålet opvarmes med varmepumper, som også kan fungere som køling. Lokalet er med LED grundbelysning overalt.

Der er rigtig fine tilkørselsforhold og gode parkeringsmuligheder foran lejemålet. Desuden er der kort afstand til busholdeplads og gode skiltningsmuligheder på bygningen, samt på pylon som er placeret ved Europavejen.

Frederikshavn - porten til Norden
Frederikshavns gode færge-, tog- og motorvejsforbindelser betyder, at byen for mange er porten til det øvrige Skandinavien, hvad end der er tale om folk til og fra Sverige, Norge, Skagen eller Læsø. Med sine 22.838 indbyggere (ultimo 2024, Danmarks Statistik) er byen også den næststørste i Vendsyssel. I kommunen er der 57.930 indbyggere (primo 2025, Danmarks Statistik).

Hvor Frederikshavn tidligere baserede sin økonomi på fiskeri, er byens erhvervsliv i dag en mangefacetteret affære, som dog stadig i høj grad orienterer sig mod Kattegat, Østersøen og naturligvis Nordsøen. Den maritime klynge i Frederikshavn tæller over 100 virksomheder, mens konventionelle havneaktiviteter som færgefart, logistik og fiskeri naturligvis stadig har stor betydning.

I de seneste år er der foretaget milliardstore investeringer i Frederikshavn, som blandt andet indebærer havneudvidelser, højhusbyggerier og byudvikling.

Kulturelt er Frederikshavn også et spændende sted at vende blikket hen, og byen har i de senere årtier oplevet en opblomstring. Her er koncerter og festivaler, teatre og biografer, handelsliv og uhøjtidelig stemning. Faktisk foregår rigtig mange ting i Frederikshavn med et glimt i øjet - som eksempelvis byens palmestrand og det tropiske hotel.

De mange tilbud og de gode forbindelser betyder, at frederikshavnerne må dele byen. Dels med de mange turister, der hvert år holder ferie på egnen og dels med de mange svenskere og nordmænd, der trænger til en god dosis Danmark, før de skal med færgen hjem.

Flere forsvarsinitiativer i Frederikshavn Kommune:
Frederikshavn Kommune ser frem til nye udviklingsmuligheder som følge af en række nye forsvarsinitiativer og investeringer. Disse initiativer kan medføre bedre mulighed for at tiltrække og fastholde borgere, skabe nye arbejdspladser samt styrke erhvervslivet og uddannelsesstederne.

Foruden genetableringen af en dansk ammunitionsproduktion i Elling, er det besluttet at bygge Forsvarets nye havmiljøskibe i Skagen samt at etablere et nyt flådeskibsværft i Frederikshavn.

Med beslutningen om at placere det nye flådeskibsværft i Frederikshavn åbner der sig nye muligheder for vækst i hele området. Etableringen af værftet vil styrke byens erhvervsliv - både direkte og gennem følgeerhverv - og bidrage til en positiv udvikling i hele kommunen. Det nye flådeskibsværft forventes placeret på et cirka 135.000 m² stort areal i Frederikshavn Havn. Placeringen tæt på Søværnets eksisterende faciliteter i Frederikshavn skaber en stærk synergi. Det nye værft vil kunne understøtte Forsvarets operative behov og bidrage til en mere effektiv vedligeholdelse og nybygning af flådefartøjer - med kortere afstand mellem værft og flåde.

Læs mere

Vil du vide mere?

Tommy Kruse Fuglsang

tkf@nordicals.dk

+4520933555

Midtpunkt 58, 9900 Frederikshavn

+4598426400

9900@nordicals.dk

Besøg vores mæglerside

Lignende ejendomme

Til top