Søndergade 40
9900 Frederikshavn

Sagsnr. E2750

Ejendomstype

Etageareal

Grund

Energiklasse

600 m²

808 m²

E

Årlig leje

Leje pr. m²

Depositum

300.000 kr.

500 kr.

150.000 kr.

Butiksejendom til leje

Nordicals Vendsyssel udlejer hermed en facadestærk butiksejendom med en central beliggenhed i ganske kort afstand til gågaden i Frederikshavn. Ejendommen er beliggende i den nordlige del af Søndergade, og der er mange forbipasserende 365 dage om året.

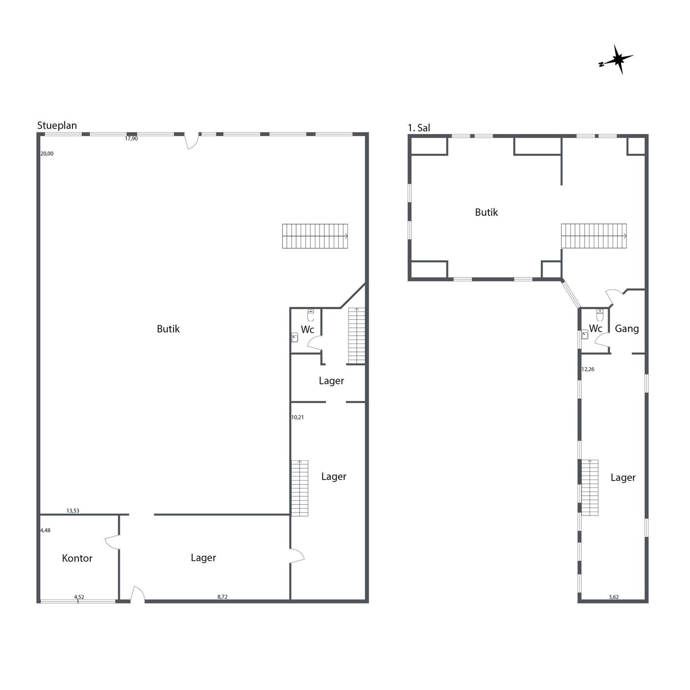
Der er tale om en erhvervsejendom i 2 etager, og bygningen er opført tilbage i 1900 og er sidenhen løbende renoveret med et samlet etageareal på 600 m², heraf 144 m² på tagetagen.

Til ejendommen er der parkeringspladser på bagsiden, og der er også gode parkeringsforhold foran ejendommen. Der er i øvrigt tyveri gitter.

Indretning:
Stueetagen er indrettet med et stort ekspeditionslokale med tæpper, lager, toilet, bruser, baglokale, personalerum. 1. sal indeholder et stort rum med tæpper, synlige bjælker, gipslofter. Der er endvidere toilet, lager samt loftsrum.

Læs mere

Vil du vide mere?

Tommy Kruse Fuglsang

tkf@nordicals.dk

+4520933555

Midtpunkt 58, 9900 Frederikshavn

+4598426400

9900@nordicals.dk

Besøg vores mæglerside

Lignende ejendomme

Til top