Frederikssundsvej 241
2700 Brønshøj

Sagsnr. PA-23047

Ejendomstype

Etageareal

Grund

Energiklasse

215 m²

301 m²

F

Kontantpris

Købspris pr. m²

Afkast

Årlig lejeindtægt

Årlig lejeindtægt pr. m²

Årlig driftsudgift

Årlig driftsudgift pr. m²

6.800.000 kr.

31.628 kr.

1,7 %

277.408 kr.

1.290 kr.

160.813 kr.

748 kr.

Blandet bolig - og erhvervsejendom med stor lejereserve

* Udlejningsejendom med 2 boligenheder og 2 erhvervsenheder
* Overtages tom for lejere
* Garager tilknyttet i baggården
* Yderst funktionel kælder

Ejendommen
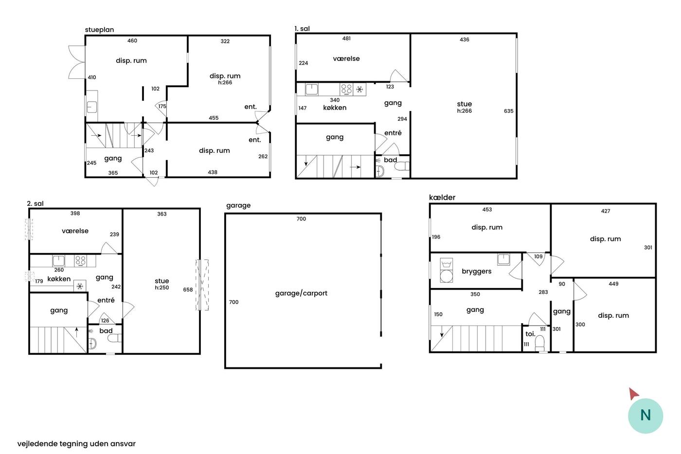
Ejendommen er opført i 1937 i 3 plan med kælder og indeholder et boligareal på 140 m² fordelt på 2 lejemål samt et erhvervsareal på 75 m² i stueplan. Ejendommen er opført i mursten med rødt tegltag og opvarmes med fjernvarme.

Ejendommen består af 2 boliglejemål begge på 70 m² beliggende på 1. og 2. sal samt 2 erhvervslejemål på henholdsvis 54 m² og 21 m². Alle har separat indgang fra hovedopgangen. Hertil kommer en meget anvendelig kælder indrettet med toilet, vaskerum og lager.

Erhvervslejemålene har direkte adgang i gadeplan på Frederikssundsvej hvor der er god eksponering med de mange forbipasserende både kørende og gående.
Boliglejemålene er godt indrettet, hvilket gør dem attraktive for mange typer af lejere. Boliglejemålene en 2- og en 3 værelses lejlighed, er begge indrettet med køkken og badeværelse. Begge boliglejemål er i god stand. Generelt fremstår ejendommen pæn stand.

Udendørsarealerne er indrettet til gård med garage og direkte tilkørsel fra Frederikssundsvej.

Ejendommen kan overtages tom for lejere.

Beliggenhed
Ejendommen er beliggende på Frederikssundsvej, op til et roligt og hyggeligt villakvarter med god mulighed for parkering i gadeplan. Inden for gåafstand masser af indkøbsmuligheder, offentlig transport og grønne områder. Derudover er ejendommen beliggende tæt på motorvejsnettet og de store indfaldsveje Motorring 3 og Hillerødmotorvejen.

Læs mere

Vil du vide mere?

Phillip Adler

pha@nordicals.dk

+45 2544 2020

Vesterbrogade 10, 4. sal, 1620 København V

+45 7788 2020

1620@nordicals.dk

Besøg vores mæglerside

Lignende ejendomme

Til top