Lyngby Hovedgade 98, 2800 Kgs. Lyngby
2800 Kongens Lyngby

Sagsnr. IP-24069

Ejendomstype

Etageareal

Grund

Energiklasse

219 m²

18.601 m²

C

Årlig leje

Leje pr. m²

304.020 kr.

1.389 kr.

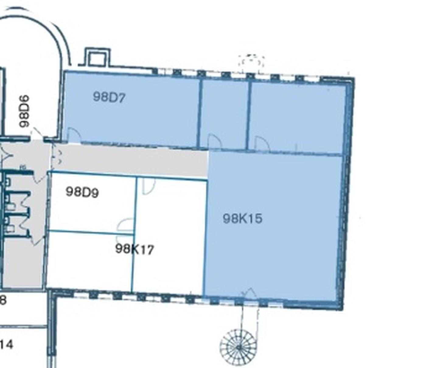
Kontor med tilhørende depot centralt i Lyngby

Vi har nu fornøjelsen af at udbyde et kontorlokale med tilhørende depotlokaler på Lyngby Hovedgade 98. Dette lejemål er en del af et kontorfællesskab, men udbydes separat grundet dets større størrelse og faciliteter.
I lejen er inkluderet alle omkostninger til varme, både koldt og varmt vand, ventilation og elektricitet til normalt kontorbrug.
Lejemålet består af 119 m² brutto kontor, der er indrettet med lys og rummelighed for øje, hvilket skaber et professionelt og inspirerende arbejdsmiljø. Derudover inkluderer lejemålet 99,8 m² brutto depot, som kan anvendes til forskellige formål, såsom lager, møderum eller arkiv, alt efter virksomhedens behov.
Med et samlet bruttoareal på 218,8 m² tilbyder dette lejemål fleksibilitet og mange anvendelsesmuligheder. Kontoret er ideelt placeret på en central og eftertragtet adresse i Lyngby, hvilket sikrer nem adgang til offentlig transport og gode parkeringsmuligheder.
Som en del af kontorfællesskabet får man desuden adgang til en række fælles faciliteter, herunder fælles mødelokale og ventelokale til eventuelle klienter, som bidrager til en effektiv og komfortabel arbejdsdag.
Dette er en enestående mulighed for virksomheder, der søger et repræsentativt kontor i et dynamisk miljø med mulighed for tilpasning og vækst. Kontakt os for yderligere information eller for at aftale en fremvisning af lejemålet. Vi ser frem til at byde jer velkommen på Lyngby Hovedgade 98.

Læs mere

Vil du vide mere?

Ida Marie Pontoppidan

ipo@nordicals.dk

+45 5385 4083

Vesterbrogade 10, 4. sal, 1620 København V

+45 7788 2020

1620@nordicals.dk

Besøg vores mæglerside

Lignende ejendomme

Til top