Maglebjergvej 11
2800 Kongens Lyngby

Sagsnr. IP-25168

Ejendomstype

Etageareal

Grund

Energiklasse

1.108 m²

1.200 m²

B

Årlig leje

Leje pr. m²

Depositum

1.503.556 kr.

1.357 kr.

772.737 kr.

Moderniseret erhvervsejendom til kontor

Ejendommen er for nyligt moderniseret, og fremstår pæn og velholdt med nyere vinduer og døre. Der er i 2022 foretaget facaderenovering med udvendig isolering, og facaderne fremstår pudsede og malede i lyse farver.

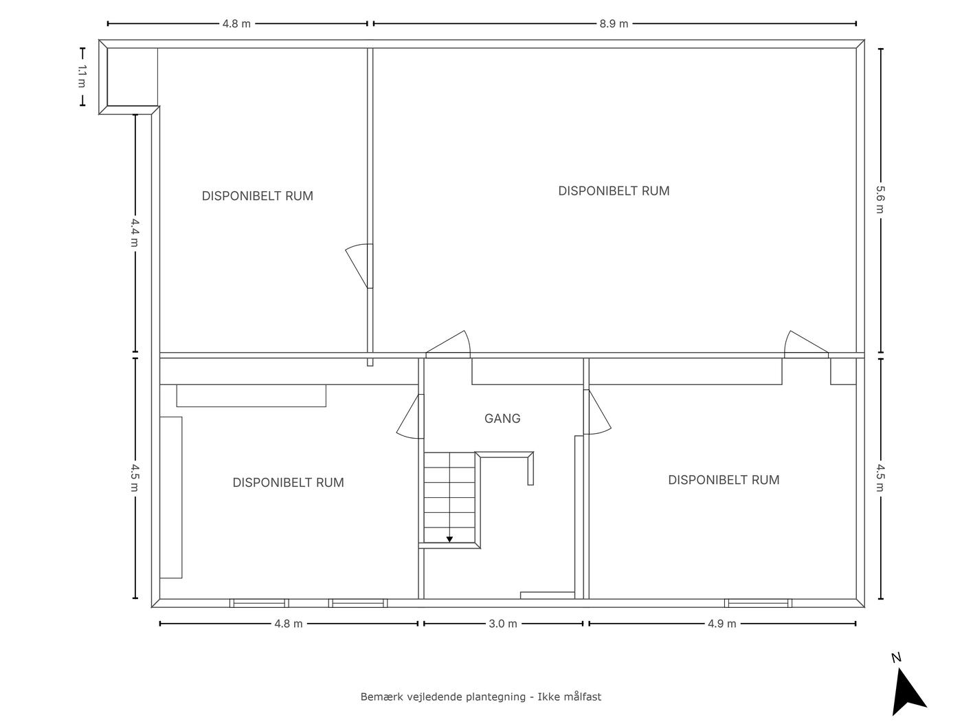
Ejendommen er indrettet med fleksibel planløsning, så kontorarealerne let kan transformeres til forskellige behov.

Fra hoveddøren træder man ind i et indbydende ankomstområde i stueetagen med indfaldslys fra oven. Stueetagen byder på store lysekontorrum, der kan indrettes efter lejers specifikke ønsker. På 1. salen er der flere regulære mødelokaler, personalekøkken samt udendørs træterrasse. 2. salen og kælderen kan benyttes til lagerplads, omklædning eller lignende. De store glaspartier rundt om hele ejendommen bidrager til et fantastisk lysindfald på alle etager, som sikrer et behageligt arbejdsmiljø.

Ved ejendommen er der endvidere gode parkeringsmuligheder for personalet både foran og bag ejendommen samt mulighed for ladestandere til el-biler.

Ejendommen er beliggende i det nordlige Lyngby, i et veletableret erhvervsområde med god infrastruktur og nærhed til DTU.

Placeringen på Maglebjergvej giver nem adgang til motorvejsnettet via Helsingørmotorvejen, hvilket sikrer effektiv pendling til og fra København samt resten af Nordsjælland. Derudover ligger Ravnholm Station blot få minutters gang fra ejendommen, og den kommende letbane vil yderligere styrke den kollektive tilgængelighed.

Området omkring Maglebjergvej er præget af et professionelt erhvervsmiljø med kontorbygninger, forskningsinstitutioner og servicevirksomheder. Derudover findes rekreative områder som Ravnholm Skov og Dyrehaven ved Eremitageslottet. Disse omgivelser bidrager til områdets kultur og attraktivitet.

I forlængelse er der rige indkøbs- og spisemuligheder nær Maglebjergvej. Lyngby Storcenter og Lyngby Hovedgade ligger få kilometer fra ejendommen og tilbyder et bredt udvalg af butikker, caféer og restauranter.

Læs mere

Vil du vide mere?

Ida Marie Pontoppidan

ipo@nordicals.dk

+45 5385 4083

Vesterbrogade 10, 4. sal, 1620 København V

+45 7788 2020

1620@nordicals.dk

Besøg vores mæglerside

Lignende ejendomme

Til top