Mesterlodden 7-8
2820 Gentofte

Sagsnr. PA-25026

Ejendomstype

Etageareal

Grund

1.226 m²

2.347 m²

Kontantpris

Købspris pr. m²

Afkast

Årlig lejeindtægt

Årlig lejeindtægt pr. m²

Årlig driftsudgift

Årlig driftsudgift pr. m²

15.500.000 kr.

12.643 kr.

6,42 %

1.267.308 kr.

1.034 kr.

264.589 kr.

216 kr.

Attraktiv og velholdt erhvervsejendom i Gentofte

Særdeles velbeliggende erhvervsejendom i et attraktivt og velbesøgt erhvervsområde i Gentofte.

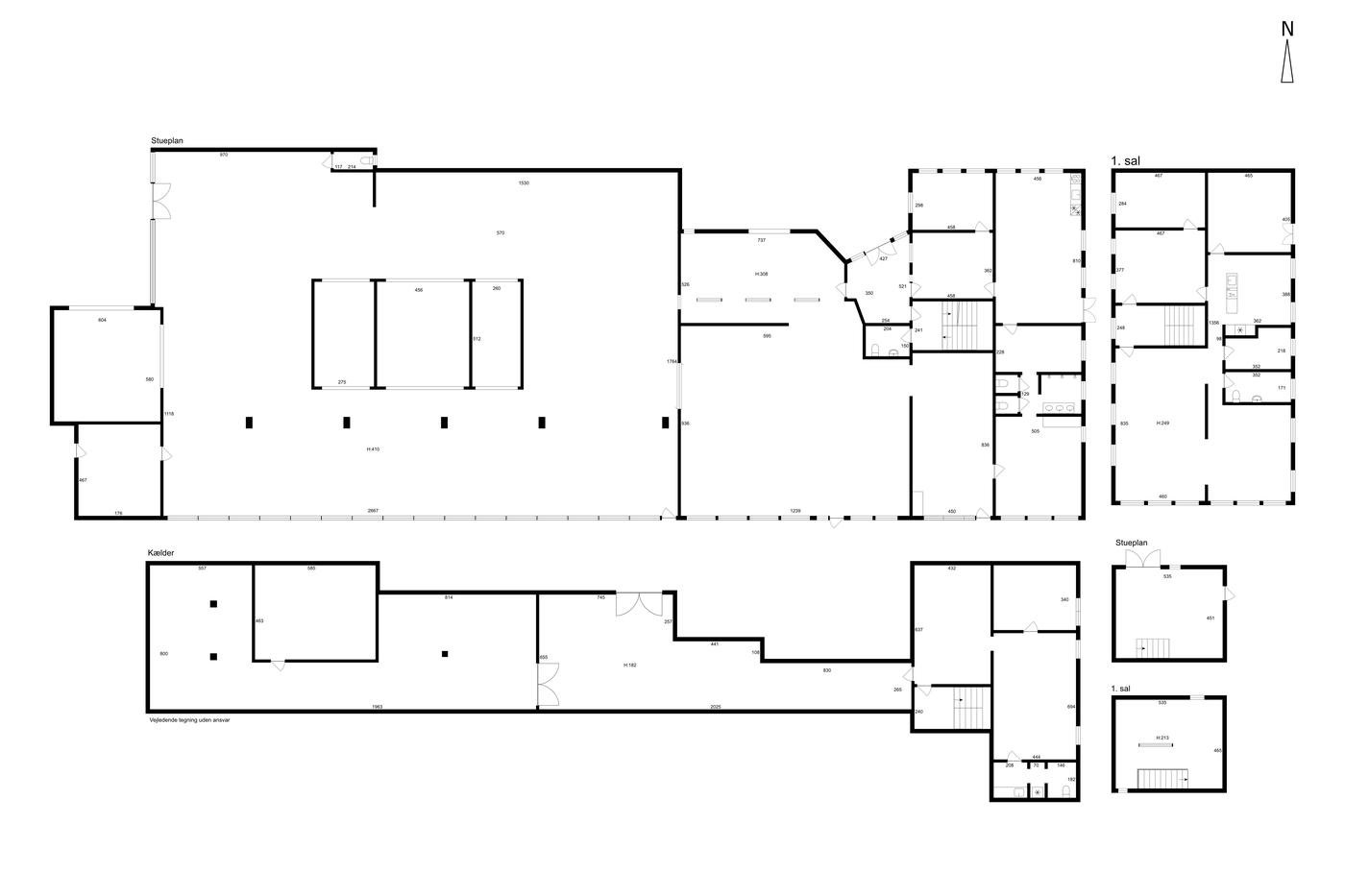
Blandet erhvervsejendom med kontor- og lagerfaciliteter. Det samlede areal udgør 1.884 m² erhverv, der fordeler sig over 987 m² i stuen og 239 m² på 1. sal samt 658 m² kælder jf. landinspektørsopmåling. Dele af ejendommen er udlejet til én lejer.

Ejendommen er let tilgængelig med kort afstand til til- og afkørsel til Motorring 3 og Helsingørmotorvejen, ligesom at Gentofte station ligger inden for 2 km. Nærheden til motor- og omfartsveje sikrer optimal adgang til København samt det øvrige Sjælland.

Læs mere

Vil du vide mere?

Phillip Adler

pha@nordicals.dk

+45 2544 2020

Vesterbrogade 10, 4. sal, 1620 København V

+45 7788 2020

1620@nordicals.dk

Besøg vores mæglerside

Lignende ejendomme

Til top