Generatorvej 33
2860 Søborg

Sagsnr. PA-23032

Ejendomstype

Etageareal

Grund

400 m²

1.500 m²

Kontantpris

Købspris pr. m²

Årlig driftsudgift

Årlig driftsudgift pr. m²

7.200.000 kr.

18.000 kr.

65.383 kr.

163 kr.

Velbeliggende og veldisponeret industriejendom i Søborg

* 400 m²
* Højloftet industriejendom
* Beliggende i attraktivt erhvervsområde i Søborg
* Tæt på motorvejsnettet
* Overtages fri for lejere

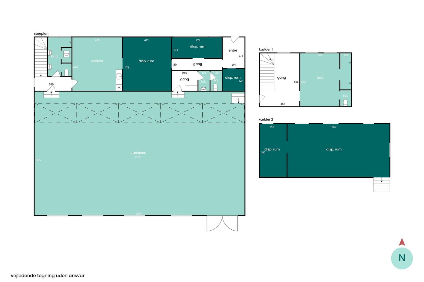
Ejendommen
Ejendommen er opført i 1963 i mursten med tag af tagpap med stor hældning. Ejendommen er indrettet med gode, store og meget regulere lokaler med god mulighed for at udnytte kontoret.

Den forreste del af ejendommen er indrettet med kontorlokaler med direkte adgang til ejendommens kælder, der er indrettet med toiletter og baderum. Bagerste del af bygningen indrettet til en stor og højloftet lagerhal.
Der er direkte indkørsel til ejendommen på siden, hvor der er installeret port, med direkte adgang til lagerhallen. Herudover er der god plads på ejendommen bagtil.

Beliggenhed
Ejendommen er beliggende i et attraktivt industriområde i Søborg tæt på motorvejsnettet og de omkringliggende indfaldsveje.

Industriområdet er en attraktivt beliggenhed med mange virksomheder i området.

Læs mere

Vil du vide mere?

Giacomo Christian Caiezza Malling

gcm@nordicals.dk

+45 2129 5445

Vesterbrogade 10, 4. sal, 1620 København V

+45 7788 2020

1620@nordicals.dk

Besøg vores mæglerside

Lignende ejendomme

Til top