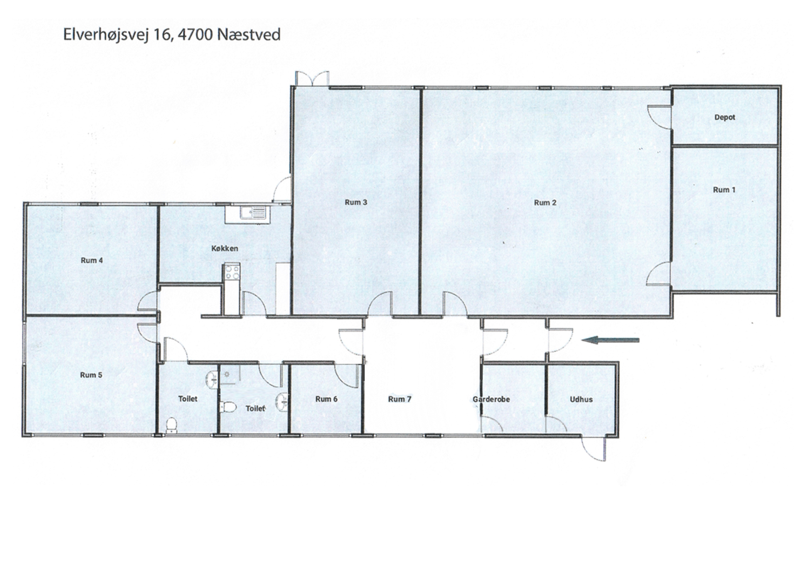
Elverhøjsvej 16
4700 Næstved

Sagsnr. 20526029

Ejendomstype

Etageareal

153 m²

Årlig leje

Leje pr. m²

Depositum

174.000 kr.

1.137 kr.

43.500 kr.

Lejemål med beliggenhed ud til Køgevej

Dette attraktive lejemål på Elverhøjsvej 16 fremstår i flot og indbydende stand, og er klar til indflytning. Lejemålet byder på ca. 153 m² lejemål bestående af et stort og regulært rum med højt til loftet samt fællesarealer. De store vinduespartier sikrer et rigtig godt lysindfald og bidrager til et lyst og inspirerende arbejdsmiljø.

Lejemålet er særdeles velegnet til kontorformål og kan nemt indrettes efter behov, uanset om der ønskes cellekontorer, åbent kontormiljø eller en kombination heraf.

Der er mulighed for leje af både flere eller færre kvadratmeter, alt efter behov. Kontakt Nordicals for en dialog herom.

Indeholdt i lejen er både forbrug af el, vand og varme samt rengøring. Ejendommens køkken samt toiletter fungerer som fællesareal, som deles med ejendommens øvrige lejere. Ligeså gælder det for parkeringspladsen, indgang/entré og gangarealer.

Ejendommen er beliggende i et roligt og velfungerende erhvervsområde i Næstved med gode tilkørselsforhold og nem adgang til både bymidten og det overordnede vejnet. Området er præget af erhverv og servicevirksomheder og tilbyder en praktisk og professionel ramme for daglig drift. Samtidig er der kort afstand til offentlig transport samt indkøb og øvrige faciliteter.

Et særdeles præsentabelt lejemål, der danner gode rammer for en moderne og effektiv arbejdsplads. Med placering ved krydset ved Køgevej opnås den helt ideelle synlighed og eksponering.

Læs mere

Vil du vide mere?

Maja Jarnved

mha@nordicals.dk

+45 5121 0079

Præstøvej 111, 4700 Næstved

+45 5950 1212

4700@nordicals.dk

Besøg vores mæglerside

Lignende ejendomme

Til top