Algade 56E, 1.
4760 Vordingborg

Sagsnr. 20525103

Ejendomstype

Etageareal

62 m²

Årlig leje

Leje pr. m²

Depositum

36.000 kr.

581 kr.

9.000 kr.

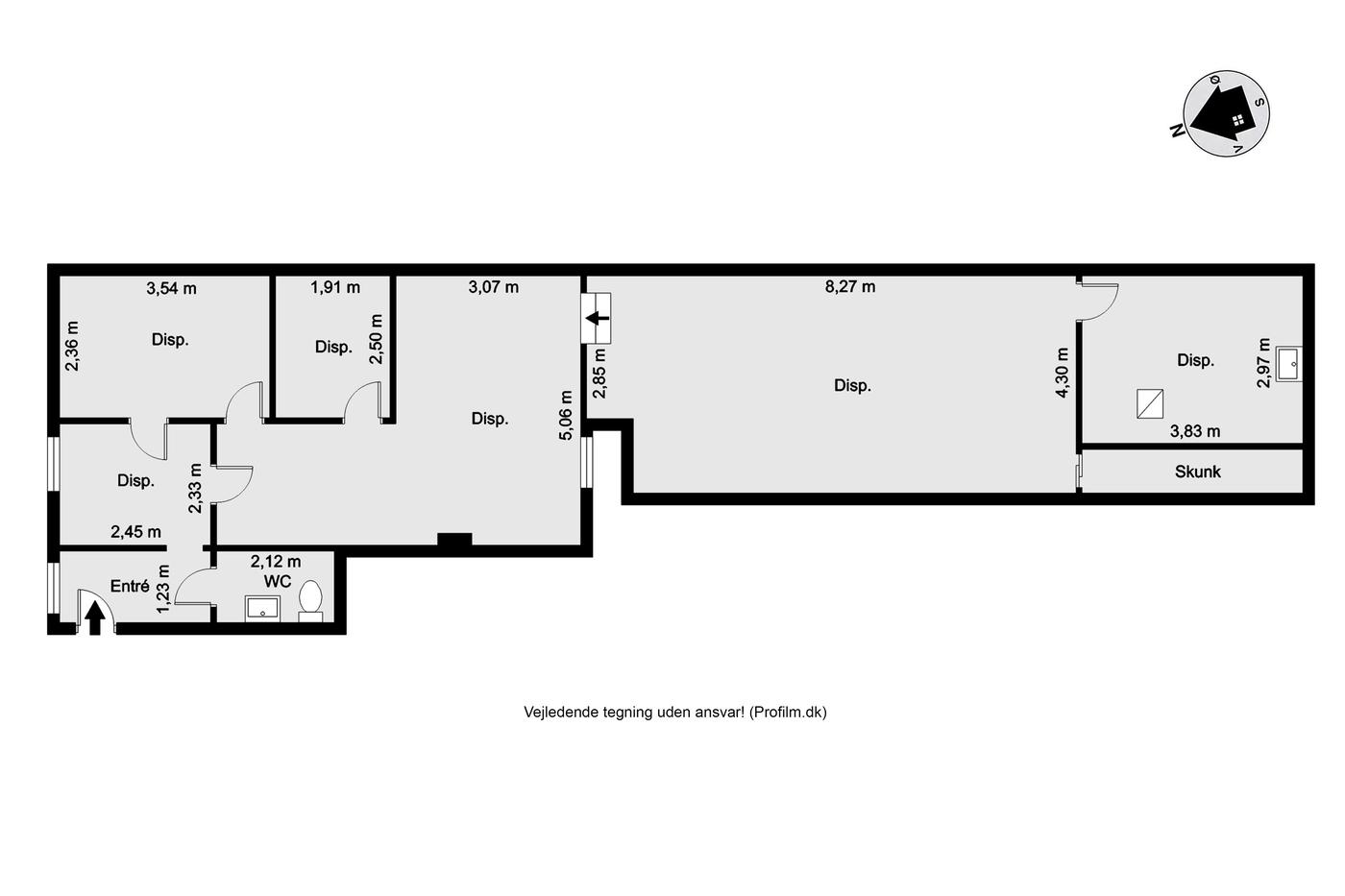
Mindre kontor centralt i Vordingborg

Midt i Vordingborg centrum er dette mindre kontor lejemål beliggende på 1. sal i ældre flot bygning.

Lejemålet er indrettet som følgende, et indgangsareal, et mindre kontor, toilet samt et par mindre rum. Det hele fremstår pænt og indflytningsklart. Til lejemålet er der også et mindre lager som er beliggende i forlængelse af kontoret på 1 sal. Selve lagerdelen fremstår i mindre god stand.

Lejemålet er oplagt til en lille virksomhed, en terapeut eller andet hvor der ikke er det store pladsbehov.

Læs mere

Vil du vide mere?

Sonny Raunholt Johansen

srj@nordicals.dk

+45 5950 1212

Præstøvej 111, 4700 Næstved

+45 5950 1212

4700@nordicals.dk

Besøg vores mæglerside

Lignende ejendomme

Til top