Marienbergvej 108
4760 Vordingborg

Sagsnr. 20525147

Ejendomstype

Etageareal

Energiklasse

1.259 m²

B

Årlig leje

Leje pr. m²

Depositum

749.105 kr.

595 kr.

187.276 kr.

Enestående mulighed i Vordingborg

Attraktivt erhvervslejemål

Lejemålet er beliggende meget centralt i Vordingborg tæt på vandet.
Der er ca. 10. minutters gang til Vordingborg Station, hvorfra der går tog til København. I området omkring lejemålet er der flere dagligvarebutikker, bibliotek/kulturhus, lystbådehavn samt en del nyere boliger.

Ejendommen hvori lejemålet er beliggende er bygget i år 2009, og fremstår stadig virkelig flot. I ejendommen er der store vinduespartier, der giver et godt lysindfald i bygningen, men også en god mulighed for synlighed.

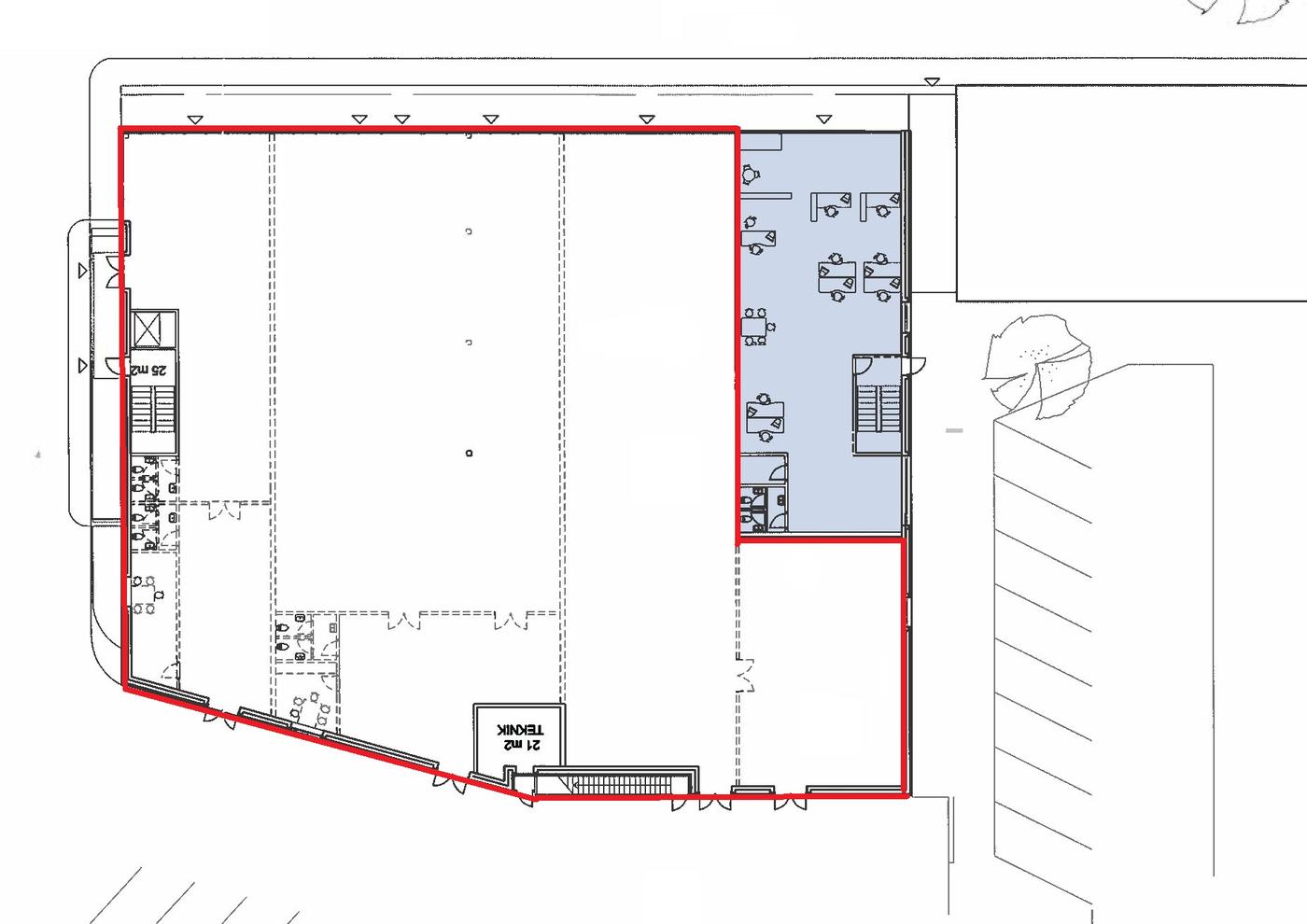
Lejemålet som er et stort rum fremstår d.d. råt og klar til at ny bruger kan indrette det efter eget behov. Selve indretningen skal nærmere aftales med udlejer alt efter hvilken anvendelse der er tale om. Udlejer står for en basis indretning(white box) hvilket betyder, at udlejer står for etableringen af hvide vægge, lofter, toilet og gulvbelægning.

Der er mulighed for at leje yderligere ca. 200m² som ligger ved siden af dette lejemål.

Læs mere

Vil du vide mere?

Sonny Raunholt Johansen

srj@nordicals.dk

+45 5950 1212

Præstøvej 111, 4700 Næstved

+45 5950 1212

4700@nordicals.dk

Besøg vores mæglerside

Lignende ejendomme

Til top