Sigynsvej 3,5 og 7
4760 Vordingborg

Sagsnr. 11524598

Ejendomstype

Etageareal

Grund

1.239 m²

23.908 m²

Kontantpris

Købspris pr. m²

Årlig driftsudgift

Årlig driftsudgift pr. m²

3.995.000 kr.

3.224 kr.

67.110 kr.

54 kr.

Erhverv med tilhørende bolig og grund

Ejendommen består af tre matrikler, hvor der er følgende, en villa på 183 m² bolig bygget i år 2006, en planteskole på ca. 1.000 m² samt en erhvervsgrund på 7.000 m².

Den samlede ejendom, der her sælges, er beliggende i det største erhvervsområde i Vordingborg. Indkørslen er på Sigynsvej, men ejendommen er beliggende sådan at den støder helt op til indfaldsvejen Næstvedvej hvilket giver ejendommen en utrolig god synlighed. Vordingborg er en attraktiv kommune, og Vordingborg by er en by i udvikling. Der er gode uddannelsesmuligheder, og der bliver bygget flere boliger. Vordingborg by trækker fra et stort opland, hvilket medfører at der er godt gang i erhvervsområdet, hvor ejendommen er beliggende.

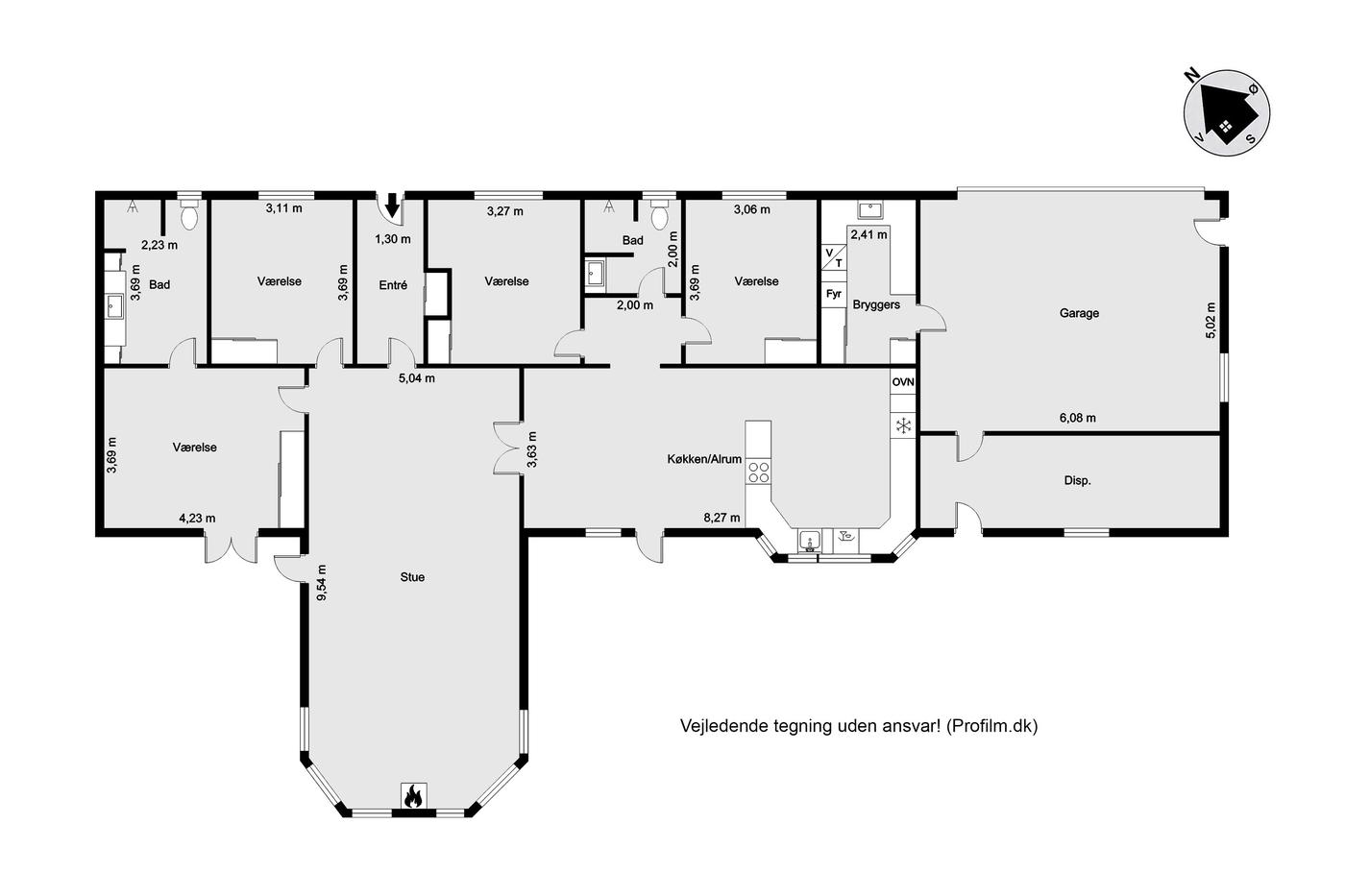
Ejendommen indeholder som sagt en nydelig villa på 183 m² beliggende på en 10.000 m² stor grund. Villaen er bygget i år 2006 og fremstår pæn og nydelig med hyggeligt terrasseområde.

Den anden bygning er en tidligere planteskole med diverse bygninger og et stort parkeringsareal. Ejendommen indeholder et stort salgsareal, kontor, personalefaciliteter, lager og noget overdækket areal. Der er mange anvendelsesmuligheder for bygningen.

Sidst er der en ubebygget erhvervsgrund på 7.000 m². Dvs. at der ialt er ca. et grundareal på næsten 24.000 m². Alle tre enheder ligger i forlængelse af hinanden.

Det er en ejendom med mange muligheder og en af dem kunne være et helt nyt stort projekt, hvor man fjerner de gamle bygninger og laver noget helt nyt. En anden kunne være, man boede i villaen og drev sin virksomhed fra de eksisterende bygninger.

Kontakt Nordicals Næstved for en dialog omkring denne unikke ejendom.

Læs mere

Vil du vide mere?

Sonny Raunholt Johansen

srj@nordicals.dk

+45 5950 1212

Præstøvej 111, 4700 Næstved

+45 5950 1212

4700@nordicals.dk

Besøg vores mæglerside

Lignende ejendomme

Til top