Stensbyvej 13
4773 Stensved

Sagsnr. 20525053

Ejendomstype

Etageareal

Energiklasse

450 m²

C

Årlig leje

Leje pr. m²

Depositum

420.300 kr.

934 kr.

210.150 kr.

Opholdssted/botilbud

Lejer overtager ejendommen indflytningsklar og indrettet til opholdssted/botilbud.

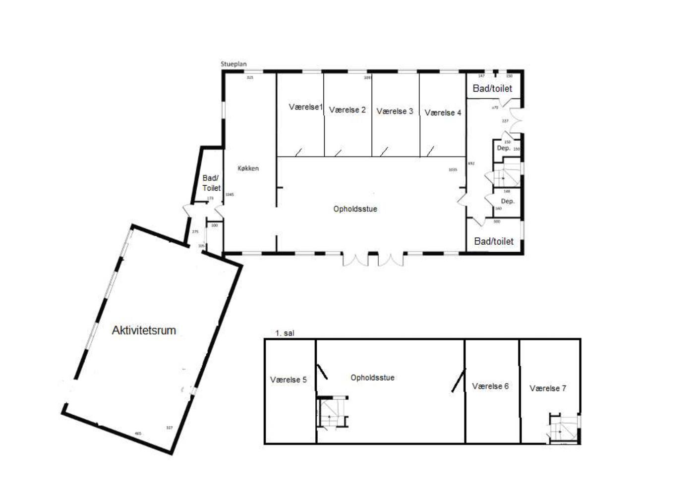
Ejendommen bliver d.d. anvendt til andet formål, men vil i forbindelse med udlejning blive ombygget og indrettet til opholdssted/botilbud efter de viste tegninger. Der er i hovedbygningen, som er i to etager, 7 værelser, to opholdsstuer, aktivitetsrum, køkken og badeværelser.

I sidebygningen er der 4 værelser, badeværelse samt åbent køkken alrum i stueetagen (sidebygningen er indrettet og klar).

Ejendommen er roligt beliggende i Stensved på en grund hvor der er en dejlig terrasse med skøn udsigt over markerne samt en græsplæne. Foran bygningen er der masser af parkeringspladser.

Kontakt Nordicals Næstved for yderligere information omkring denne unikke mulighed for at overtage en indflytningsklar ejendom.

Læs mere

Vil du vide mere?

Sonny Raunholt Johansen

srj@nordicals.dk

+45 5950 1212

Præstøvej 111, 4700 Næstved

+45 5950 1212

4700@nordicals.dk

Besøg vores mæglerside

Lignende ejendomme

Til top