Nørregade 9
4930 Maribo

Sagsnr. 20525640

Ejendomstype

Etageareal

Grund

Energiklasse

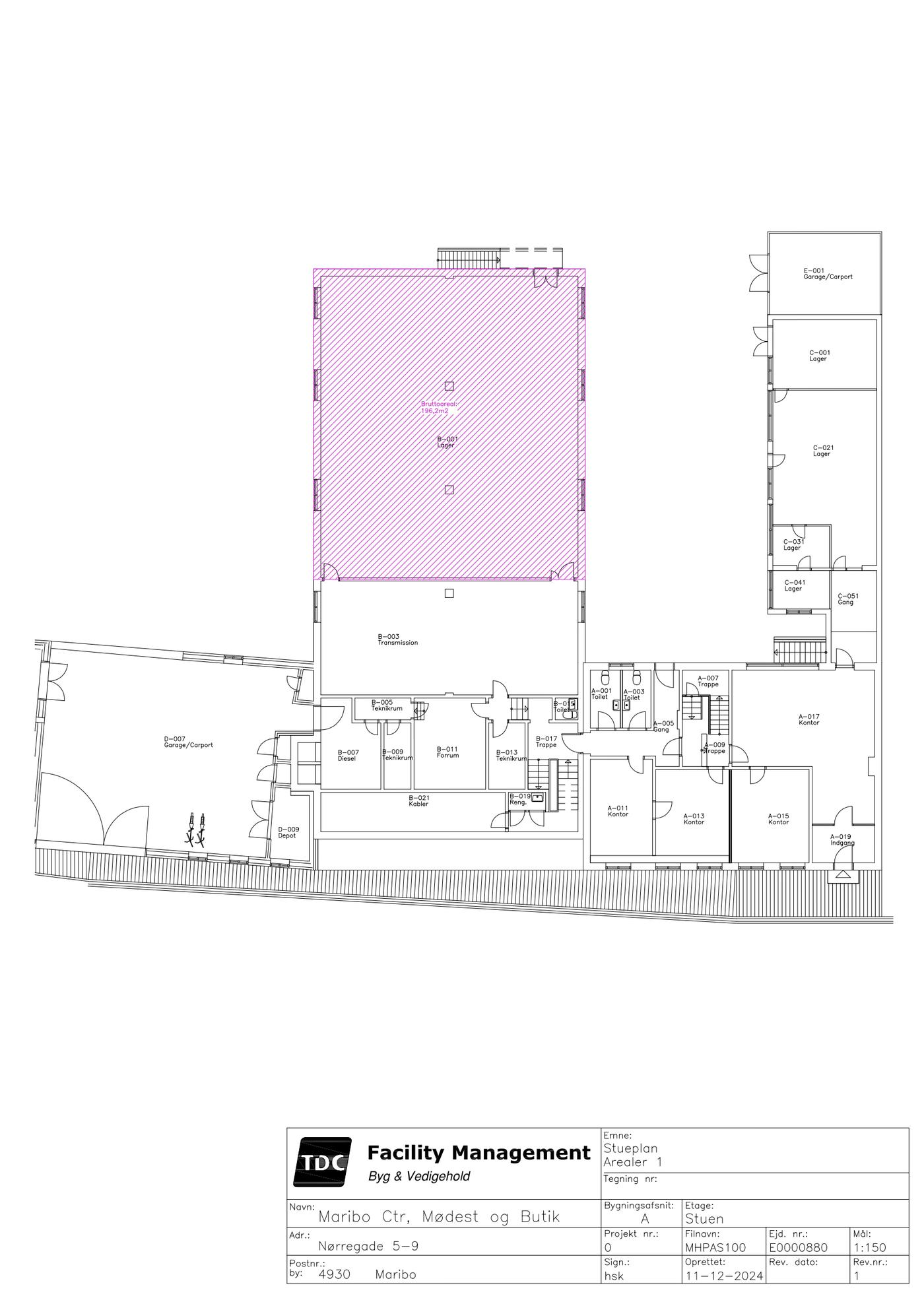
196 m²

1.751 m²

G

Årlig leje

Leje pr. m²

Depositum

Årlig driftsudgift

Årlig driftsudgift pr. m²

58.800 kr.

300 kr.

29.400 kr.

11.760 kr.

60 kr.

Lagerlokale i Maribo

Lagerlokalet på Nørregade 9 i Maribo tilbyder 214 m² fleksible og funktionelle arealer, ideelt til en bred vifte af professionelle anvendelser.

Lokalet har en fornuftig lofthøjde og en praktisk beliggenhed i den tidligere TDC-bygning, er der rig mulighed for effektiv opbevaring og drift.

Lokalet er isoleret og opvarmet.

Med sin rummelighed er lageret perfekt til pluklager, webshop eller som lagerlokale materialer. Den centrale placering gør det nemt at tilgå for både lokale og eksterne transportmuligheder.

Lejemålet er beliggende meget centralt i Maribos bymidte tæt på Maribo Station og motorvej E47 mod København. Der er sker en masse i erhvervsområdet ved motorvejsafkørsel nr. 48. på Sydmotorvejen. I Maribo er der en dejlig natur med bl.a. søerne som et skønt udflugtsmål. Derudover er der en god og attraktiv bymidte med mange forskellige butikker.

Læs mere

Vil du vide mere?

Mads Hess Jensen

mhj@nordicals.dk

+45 5950 1212

Præstøvej 111, 4700 Næstved

+45 5950 1212

4700@nordicals.dk

Besøg vores mæglerside

Lignende ejendomme

Til top