Erhard Frederiksensvej 2
4960 Holeby

Sagsnr. 11525135

Ejendomstype

Etageareal

Grund

626 m²

2.423 m²

Kontantpris

Købspris pr. m²

Årlig driftsudgift

Årlig driftsudgift pr. m²

1.495.000 kr.

2.388 kr.

30.092 kr.

48 kr.

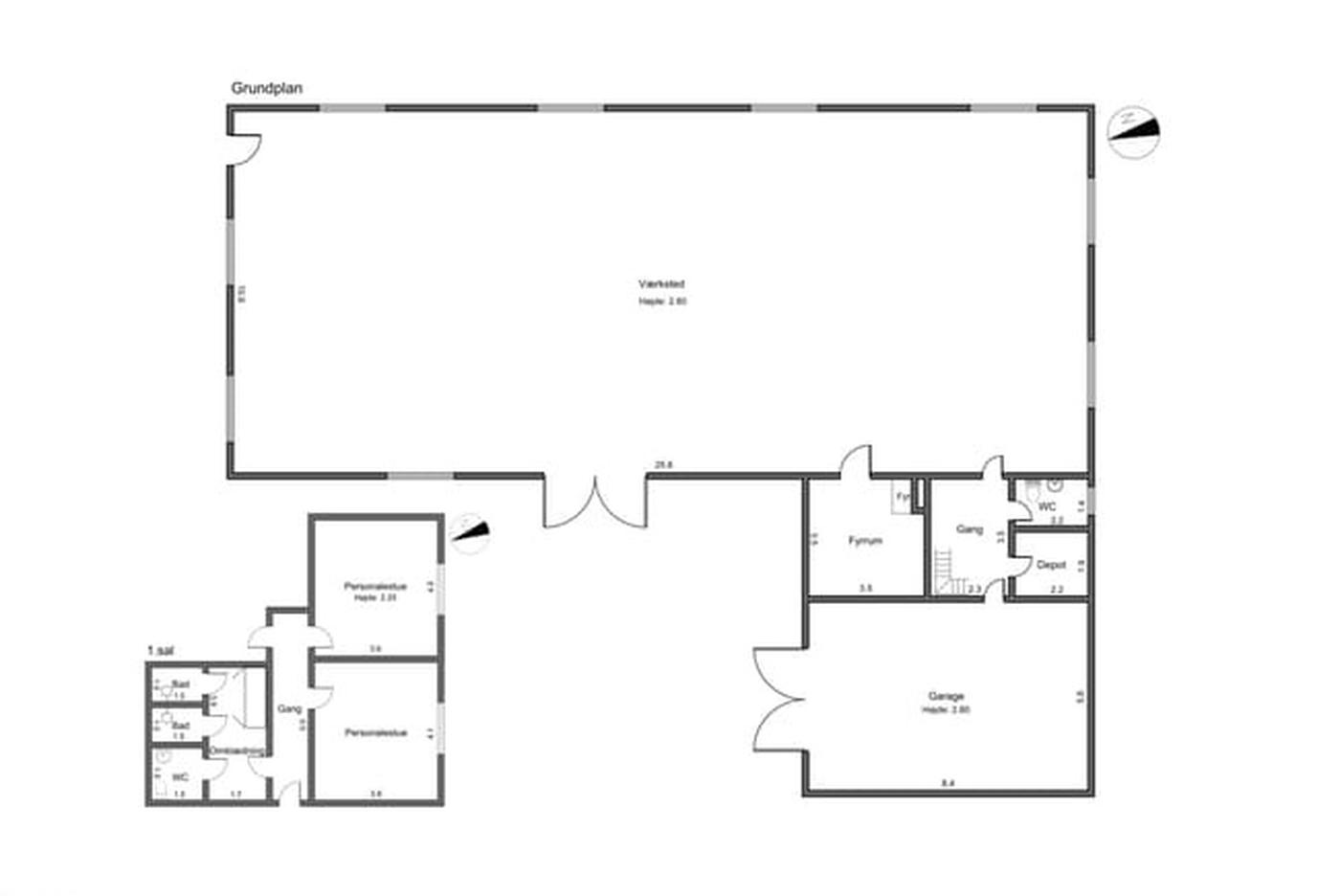
Snedkerværksted til salg

Ejendommen er igennem de seneste mange år været anvendt som snedkerværksted. Men ejendommen kan anvendes til mange forskellige brancher, det kunne være forskellige håndværksvirksomheder eller noget helt andet

Ejendommen er indrettet med div. mindre rum såsom toilet, fyrrum og et meget stort lokale, hvor der pt. er værksted. På 1 sal er der toiletter og kontor. Derudover er der en garage.

Ejendommen er beliggende i byens erhvervsområde og fremstår i en almindelig vedligeholdt stand.

Læs mere

Vil du vide mere?

Sonny Raunholt Johansen

srj@nordicals.dk

+45 5950 1212

Præstøvej 111, 4700 Næstved

+45 5950 1212

4700@nordicals.dk

Besøg vores mæglerside

Lignende ejendomme

Til top