Hvidkærvej 29, Højme
5250 Odense SV

Sagsnr. 26957

Ejendomstype

Etageareal

Grund

Energiklasse

3.721 m²

19.565 m²

C

Investeringsejendom - kontor

Unik kontor-investeringsejendom udbydes nu til salg i meget attraktivt erhvervsområde i Odense SV.

Ejendommen er på i alt ca. 3.700 m² og er i dag delvist udlejet til 8-9 lejere, der optager ca. 2.500 - 2.600 m².

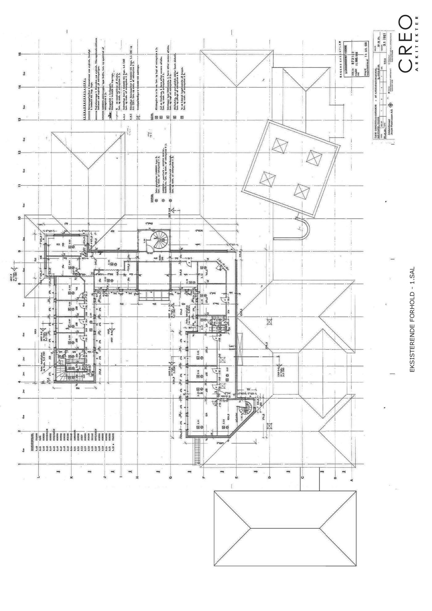
Ejendommen er opført i 2 plan 1989, og er efterfølgende blevet moderniseret og tilbygget i gule teglsten med tegltag.

Den markante kontorejendom har en fantastisk beliggenhed i fuldt udbygget erhvervsområde i Odense SV med facade mod motorvejen, hvilket giver stor synlighed fra ca. 73.000 bilister fra Den Fynske Motorvej hver dag. Det tager derfor heller ikke mange minutter at nå motorvejs- og ringvejssystemet.

Ejendommen fremstår meget velvedligeholdt og har god, fleksibel indretning. Grundet den fleksible indretning er det derfor også muligt at opdele lokalerne til mindre lejemål med egen indgang, hvis dette ønskes.

Indretning
Kontorejendommen entreres via flot, stor hall, der fører dig ind til kontor-, møde- og konferencefaciliteter i gode størrelser. Herudover har kontorejendommen et særdeles spændende kantineområde samt stort auditorium.

Fællesdomicil forslag
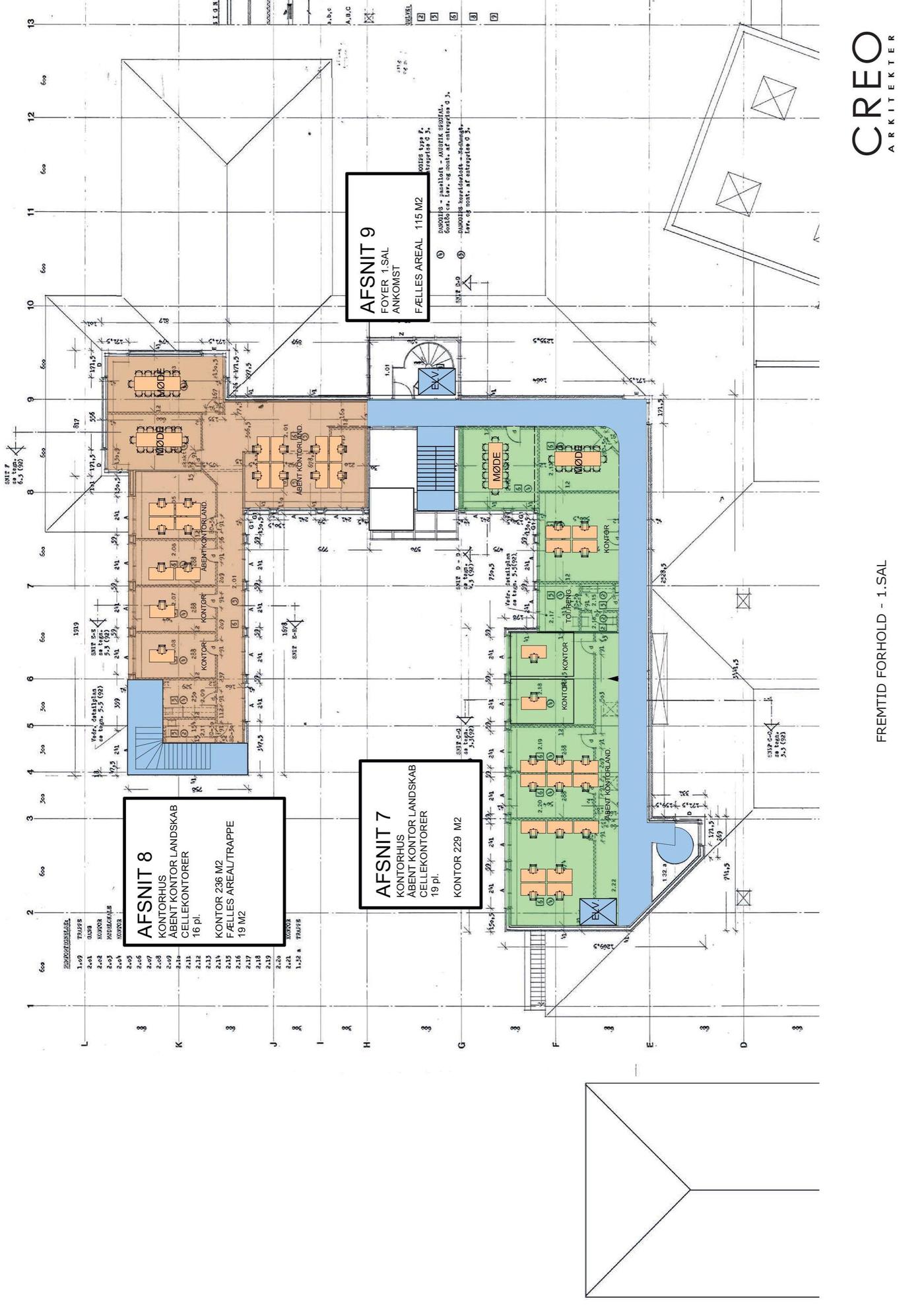
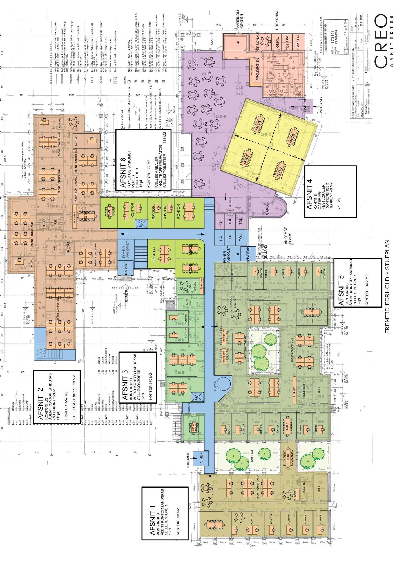
Den nuværende ejer har fået lavet et udførligt forslag fra CREO Arkitekter v/Lars Møller på omdannelse og modernisering af ejendommen til fællesdomicil.

Dette omfatter blandt andet:

-opdeling af bygningen i mindre enheder for at skabe stor fleksibilitet
-fælles reception, fælles møde- og kantinefaciliteter
-bedre udnyttelse af foyer med møde, kontor, ny trappe, elevator
-bedre udnyttelse af cellekontorer til åbent kontormiljø
-flere mulige indgange til ejendommen
-kantine til spisning, konferencer, catering evt. udlejning af festlokaler
-mulig udvidelse af parkeringsarealer og bygninger mod øst

Der foreligger indretningsforslag med plantegninger samt overslagspriser på ombygningen - kontakt mægler for udlevering heraf. Dette forslag betyder, at der kun bliver 394 m² fællesarealer samt ca. 3.000 m² kontorer/kantine til udlejning i stueplan samt på 1. sal. Beregning af hvorledes udlejning/økonomien kan være ved dette forslag foreligger ligeledes.

Det nye lejemål med Gislev Rejser på 1.018 m² er etableret med udgangspunkt i denne nye plan.

Generelt
En af ejendommens andre styrker er de mange parkeringspladser, der hører med, og så fremstår udenomsarealerne særdeles smukke med flot anlagt haveanlæg, hvilket er en sjældenhed ved denne ejendomstype.

Der er mulighed for meget store bygningsmæssige udvidelser på det store grundstykke, hvilket er inklusive i nærværende salgspris.

Af naboer i området kan bl.a. nævnes FTZ, Scandic Odense, Micro Matic, Gasa, Odense Bolig ApS, Autohuset Vestergaard A/S Odense mfl.

Læs mere

Denne ejendom er solgt

Vil du vide mere?

Niels Jørgensen

nij@nordicals.dk

+4551252825

Kongensgade 27, 1. sal, 5000 Odense C

+4566138060

5000@nordicals.dk

Besøg vores mæglerside

Lignende ejendomme

Til top